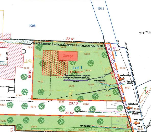
Terrain - 480 m² à Sommières
favoris
149 000 €
Description :
Sommières, Sur les hauteurs de MAUVALAT,
Issu d'une division parcelaire,
EN EXCLUSIVITE ,L'atelier de l'immo à la plaisir de vous proposer cette belle parcelle de 480 M2 idéalement sur le secteur recherché de MAUVALAT
Entrée independante, terrain plat, emprise au sol de 20% soit 96 M2
R+1 accepté , Viabilisation, G2, fosse septique à charge acheteur , clotures
PRIX 149 000 FAI
Pour toutes informations , me contacter pour toute visite
Stephanie & Lionel 06 14 78 11 91 & 06 87 61 43 08
Afficher plus de détails
Informations sur ce bien :
L'intérieur :
-
480 m²
-
Sans cuisineInformations complémentairesSans cuisine
L'extérieur :
-
Parking
Autres :
-
Étage :RDC
Terrain :
-
Constructible :Oui
-
Viabilisé :Non
Synthèse
Terrain à Sommières
149 000 €
Surface :
480 m²
Prix au m² :
310 €
Transaction :
Achat
Référence :
302_322
Date de publication :
Il y a plus de 7 jours
Contacter l'annonceur
Agent
Expertimo
L'atelier de l'immo
Mettre en avant cette annonce
Signaler une erreur
Localisation :
L'adresse exacte n'est pas renseignée. Le bien se situe dans cette zone.
Ventes de terrains à proximité
- 12 ventes de terrains à Villevieille (1.4 km)
- 7 ventes de terrains à Boisseron (2.6 km)
- 5 ventes de terrains à Saussines (3.4 km)
- 4 ventes de terrains à Souvignargues (4.4 km)
- 4 ventes de terrains à Fontanès (5.2 km)
- 3 ventes de terrains à Congénies (5.6 km)
- 7 ventes de terrains à Aubais (5.6 km)
- 2 ventes de terrains à Saint-Sériès (6 km)
- 1 vente de terrain à Saint-Christol (6.3 km)