• Terrain - 750 m²
  • Terrain - 750 m²
  • Terrain - 750 m²
  • Terrain - 750 m²
  • Terrain - 750 m²
  • Terrain - 750 m²
  • Terrain - 750 m²
140 000 €
750 m²

Description :

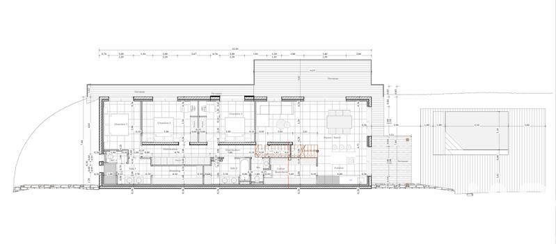
Iad france - thomas garrido vous propose : au coeur du charmant village de sollacaro ! Terrain viabilisé d'une surface de 750 m² environ avec une vue dégagée sur les collines environnantes. Permis de construire en cours de dépôt pour une maison de 5 pièces, d'une surface habitable de 150 m² environ (140 m² en rez de jardin + 10 m² en r + 1) avec un carport et un garage à vélos. Le permis de construire, modifiable selon vos envies, porte sur une maison comprenant : un double séjour avec cuisine ouverte - un cellier / buanderie - 3 chambres dont une suite avec salle d'eau et dressing - une salle de bain. Permis d'amenager unilot accordé. Tres rare dans le secteur ! À visiter sans tarder ! Honoraires d'agence à la charge du vendeur. Bien non soumis au dpe. Les informations sur les risques auxquels ce bien est exposé, y compris l'obligation légale de débroussaillement, sont disponibles sur le site géorisques : http://www.georisques.gouv.fr. la présente annonce immobilière a été rédigée sous la responsabilité éditoriale de m thomas garrido mandataire indépendant en immobilier (sans détention de fonds), agent commercial de la sas i@d france immatriculé au rsac de ajaccio sous le numéro 909166423, titulaire de la carte de démarchage immobilier pour le compte de la société i@d france sas.

Afficher plus de détails

Informations sur ce bien :

L'intérieur :

  • 750 m²

Autres :

  • Mitoyenneté :
    Non

Terrain :

  • Viabilisé :
    Non
Synthèse
Terrain à Sollacaro
140 000 €
Surface : 750 m²
Prix au m² : 187 €
Transaction :
Achat
Référence :
1968866
Date de publication :
Aujourd'hui à 07:58
Terrain - 750 m²
Agent
iad france
iad france
Thomas Garrido
Appeler
Écrire
Mettre en avant cette annonce
Signaler une erreur

Localisation :

L'adresse exacte n'est pas renseignée. Le bien se situe dans cette zone.
Annonces similaires
Annonces immobilières récentes