Local d'activités - 187 m² - 5 pièces à Sète
favoris
469 000 €
Description :
Côté Cœur de Ville Idéalement situés en plein centre-ville, sur un quai piétonnier animé, à proximité immédiate des transports en commun et des grandes enseignes, ces murs commerciaux bénéficient d'un emplacement de choix. Ce local lumineux, doté d'une vitrine et d'un double accès, offre une excellente visibilité et une accessibilité optimale. Sa belle hauteur sous plafond permet de nombreuses possibilités d'aménagement, s'adaptant parfaitement à des activités variées : boutique de mode, services, ou autre concept retail. Le local est conforme aux normes en vigueur.
Afficher plus de détails
Informations sur ce bien :
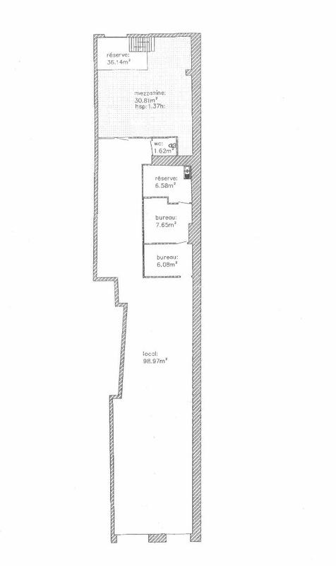
L'intérieur :
-
5 pièces
-
187 m²Informations complémentairesSurface Carrez : 157 m²
Surface habitable : 187 m²
Autres :
-
État :Bon
-
Mitoyenneté :Non
-
Exposition :Ouest
-
Vue :Dégagée, Port, Quai
-
Étage :RDC
Copropriété :
-
Copropriété :Oui
-
Nombre de lots :4
-
Charges annuelles :1 200 €
-
Taxe foncière :2 200 €
Synthèse
Local d'activités à Sète
469 000 €
Surface :
187 m²
Prix au m² :
2 508 €
Transaction :
Achat (professionnels)
Référence :
344676478
Date de publication :
Il y a plus de 7 jours
Contacter l'annonceur
Performance énergétique
A
B
C
D
E
F
G
Gaz à effet de serre
A
B
C
D
E
F
G
Agent
Imobook
JOURDAIN Charles
Mettre en avant cette annonce
Signaler une erreur
Localisation :
L'adresse exacte n'est pas renseignée. Le bien se situe dans cette zone.
Performance énergétique :
Logement économe
A
62
kWh/m²/an
1
kg CO₂/m²/an
B
C
D
E
F
G
Logement énergivore
Faible émission de CO₂
A
1
kg CO₂/m²/an
B
C
D
E
F
G
Forte émission de CO₂
Vente de locaux d'activité et entrepôt à proximité
- 1 vente de local d'activité et entrepôt à Balaruc-le-Vieux (5.9 km)
- 1 vente de local d'activité et entrepôt à Frontignan (6.1 km)
- 3 vente de locaux d'activité et entrepôt à Poussan (9.3 km)
- 1 vente de local d'activité et entrepôt à Gigean (10.3 km)
- 1 vente de local d'activité et entrepôt à Marseillan (15.1 km)
- 8 vente de locaux d'activité et entrepôt à Agde (21.2 km)
- 1 vente de local d'activité et entrepôt à Saint-Georges-d'Orques (23.4 km)
- 9 vente de locaux d'activité et entrepôt à Montpellier (26.6 km)
- 1 vente de local d'activité et entrepôt à Portiragnes (30.9 km)