Local commercial - 819 m² à Serres-Castet
favoris
3 000 € HT / mois
Description :
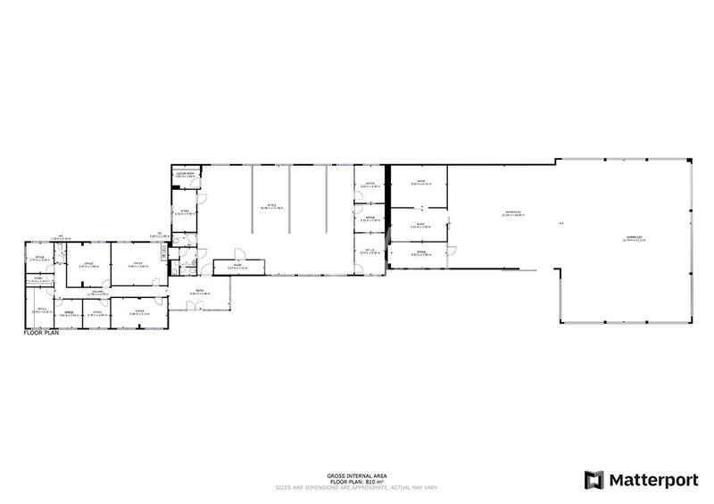
Local commercial en bon état d'une surface de 819 m2 comprenant des bureaux (surface d'environ 201 m2) et un entrepôt (surface d'environ 618 m2), situé dans une zone industrielle et commerciale à proximité de la bretelle d'autoroute. Le terrain d'une superficie d'environ 3 659 m2 comprend de nombreux emplacements de stationnement entièrement goudronné et des espaces verts. Bâtiment accessible aux camions de toutes tailles et terrain entièrement clôturé. Prix HT.
Dépôt de garantie 9 900 €. Non soumis au DPE. Les informations sur les risques auxquels ce bien est exposé sont disponibles sur le site Géorisques : georisques.gouv.fr.
Afficher plus de détails
Informations sur ce bien :
L'intérieur :
-
819 m²
L'extérieur :
-
Parking
Autres :
-
Étage :RDC
Synthèse
Local commercial à Serres-Castet
3 000 € HT / mois
Surface :
819 m²
Transaction :
Location (locaux professionnels)
Référence :
LP1422
Montant de la caution :
9 900 €
Date de publication :
Il y a plus de 7 jours
Contacter l'annonceur
Agent
Colombes
CPC Monein
Mettre en avant cette annonce
Signaler une erreur
Localisation :
L'adresse exacte n'est pas renseignée. Le bien se situe dans cette zone.
Performance énergétique :
Bien non soumis au Diagnostic de Performance Énergétique (DPE)
Locations de locaux commerciaux à proximité
- 1 location de local commercial à Montardon (2.2 km)
- 2 locations de locaux commerciaux à Sauvagnon (3.1 km)
- 3 locations de locaux commerciaux à Lescar (8.7 km)
- 1 location de local commercial à Morlaàs (8.9 km)
- 8 locations de locaux commerciaux à Lons (9.1 km)
- 4 locations de locaux commerciaux à Billère (10 km)
- 62 locations de locaux commerciaux à Pau (10.3 km)
- 1 location de local commercial à Denguin (12.7 km)
- 1 location de local commercial à Assat (15.7 km)