• Appartement - 48 m² - 2 pièces
  • Appartement - 48 m² - 2 pièces
258 900 €
48 m²
2 pièces
1 chambre

Description :

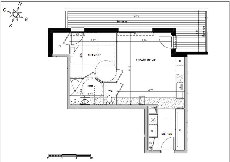
À vendre : Appartement moderne et confortable à Sciez Découvrez ce superbe appartement situé au premier étage d'un immeuble avec ascenseur.
Caractéristiques de l'appartement : Séjour avec un espace cuisine totalisant 23,02 m2,une chambre confortable de 12,66m2, un WC et une salle de bains deux places de parking exterieur.
À l'extérieur : Profitez d'une magnifique terrasse de plus de 15,26 m2.
Autres prestations: Cave, local à vélos et jardin commun offrant un cadre de vie agréable et pratique.
À proximité : Commodités à portée de main: commerces et crèche situés au pied de l'immeuble. Accès facile aux activités de plein air grâce à la proximité du lac Léman et du port de Sciez.
Livraison prévue le 2ème trimestre 2027.
Les informations sur les risques auxquels ce bien est exposé sont disponibles sur le site Géorisques : www.georisques.gouv.fr

Afficher plus de détails

Informations sur ce bien :

L'intérieur :

  • 2 pièces
  • 48 m²
  • 1 Chambre
  • Cuisine américaine
    Informations complémentaires
    Américaine
  • 1 Salle de bain
  • 1 Salle d'eau
  • 1 Toilette
  • Séjour de 23 m²
  • Cave

L'extérieur :

  • Terrasse
  • 2 Parkings

Les équipements :

  • Ascenseur
  • Accès handicapé
  • Interphone

Autres :

  • Chauffage :
    Collectif, Gaz
  • Exposition :
    Nord
  • Étage :
    1er étage
    Informations complémentaires
    Nombre d'étages de la construction : 4

Copropriété :

  • Copropriété :
    Oui
  • Nombre de lots :
    89
Synthèse
Appartement à Sciez
258 900 €
Surface : 48 m²
Prix au m² : 5 394 €
Transaction :
Achat
Référence :
LO2289lot101
Date de publication :
Il y a plus de 7 jours
Appartement - 48 m² - 2 pièces
Agent
HOME ET PATRIMOINE
HOME ET PATRIMOINE
Sciez Home et Patrimoine
Appeler
Écrire
Mettre en avant cette annonce
Signaler une erreur

Localisation :

L'adresse exacte n'est pas renseignée. Le bien se situe dans cette zone.

Performance énergétique :

Bien non soumis au Diagnostic de Performance Énergétique (DPE)

Annonces similaires
Annonces immobilières récentes