• Appartement - 66 m² - 3 pièces
  • Appartement - 66 m² - 3 pièces
  • Appartement - 66 m² - 3 pièces
356 500 €
66 m²
3 pièces
2 chambres

Description :

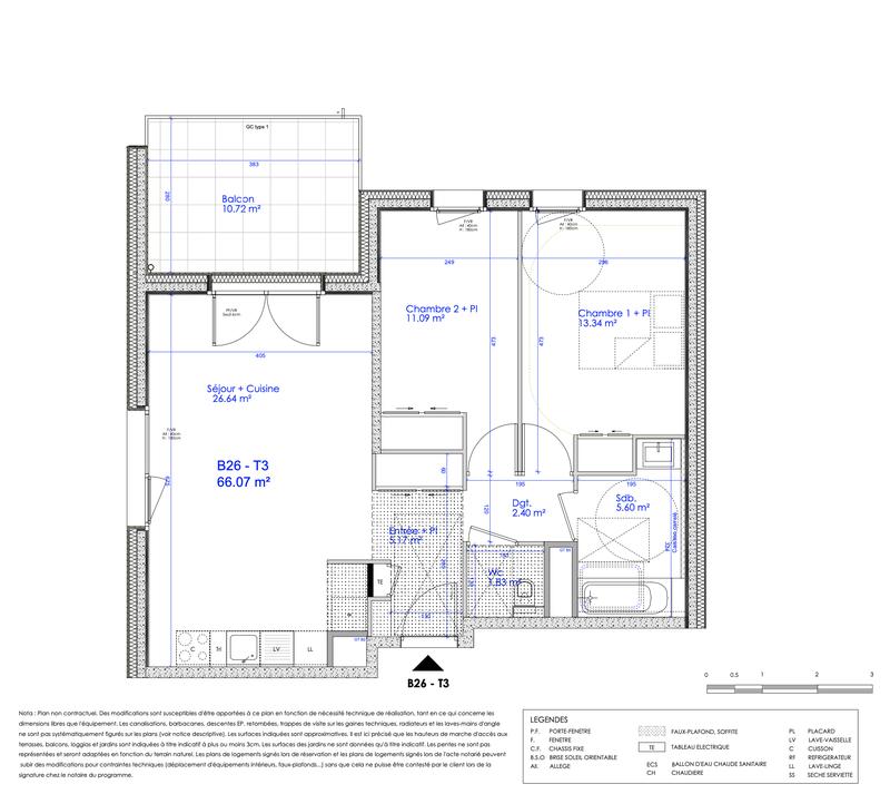
Sciez, proche des commodités, dans une résidence en cours de construction, appartement de type 3  (lot B26), comprenant : entrée, séjour / cuisine donnant sur un balcon de 10,72m2, deux chambres, une salle de bains et des toilettes séparées. Deux places de stationnement sont comprises avec ce bien.
Une résidence conviviale et champêtre dans un parc paysagé offrant espaces de détente et jardin potager partagé.
Photos non contractuelles.
Copropriété de 377 lots dont 100 lots d'habitation répartis en quatre bâtiments de maximum quatre étages.
D'autres lots disponibles, n'hésitez pas à contacter l'agence pour toute demande d'information.
Annonce rédigée par un agent commercial en E.I.; RSAC 824 481 287 Thonon les Bains No ADC 7401 2024 000 000 200
Cette annonce vous est proposée par MANSUY Emmanuel - EI - NoRSAC: 824 481 287 Thonon-les-Bains, Enregistré au Greffe du tribunal de commerce de Thonon le Bains
Les informations sur les risques auxquels ce bien est exposé sont disponibles sur le site Géorisques : www.georisques.gouv.fr

Afficher plus de détails

Informations sur ce bien :

L'intérieur :

  • 3 pièces
  • 66 m²
  • 2 Chambres
  • Cuisine américaine
    Informations complémentaires
    Américaine
  • 1 Salle de bain
  • 1 Toilette
  • Cave

L'extérieur :

  • Balcon de 10 m²
  • 2 Parkings

Les équipements :

  • Ascenseur

Autres :

  • Chauffage :
    Collectif, Gaz
  • Étage :
    2nd étage
    Informations complémentaires
    Nombre d'étages de la construction : 3

Copropriété :

  • Copropriété :
    Oui
  • Nombre de lots :
    377
Synthèse
Appartement à Sciez
356 500 €
Surface : 66 m²
Prix au m² : 5 402 €
Transaction :
Achat
Référence :
B26
Disponibilité :
20/10/2025
Date de publication :
Il y a plus de 7 jours
Appartement - 66 m² - 3 pièces
Agent
HOME ET PATRIMOINE
HOME ET PATRIMOINE
MANSUY Emmanuel
Appeler
Écrire
Mettre en avant cette annonce
Signaler une erreur

Localisation :

L'adresse exacte n'est pas renseignée. Le bien se situe dans cette zone.

Performance énergétique :

Bien non soumis au Diagnostic de Performance Énergétique (DPE)

Annonces similaires
Annonces immobilières récentes