• Appartement - 76 m² - 3 pièces
  • Appartement - 76 m² - 3 pièces
  • Appartement - 76 m² - 3 pièces
262 500 €
76 m²
3 pièces
2 chambres

Description :

Appartement 3 pièces avec vue mer à Sari-Solenzara

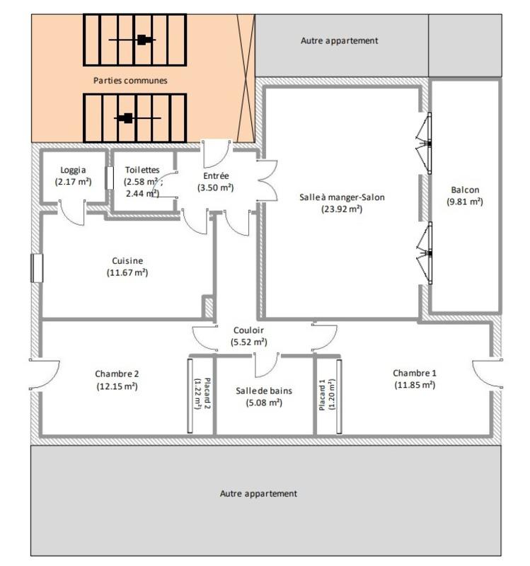
Situé dans la charmante commune de Sari-Solenzara, en Corse-du-Sud, cet appartement de 76 m² offre un cadre de vie agréable entre mer et montagne.
Composé de 3 pièces principales, dont 2 chambres, il dispose également d'une cave, d'une place de parking privative, et d'un balcon avec une belle vue sur la mer et la ville.

L'appartement bénéficie d'une belle luminosité naturelle grâce à une exposition est.
Il a déjà fait l'objet de plusieurs travaux récents : électricité, menuiseries, radiateurs et installation d'un cumulus thermodynamique, garantissant confort et performance énergétique. Prévoir une remise au goût du jour pour les sanitaires.

Le bien se situe à proximité immédiate des commodités : commerces, restaurants, accessibles à pied, sans être dans la rue très animée le soir.

La rivière, les plages et les sentiers de randonnée sont également tout proches, pour profiter pleinement de la nature environnante.

Un bien rare dans un environnement agréable, idéal en résidence principale, secondaire ou en investissement locatif. Nombre de lots de la copropriété : 87, Montant moyen annuel de la quote-part de charges (budget prévisionnel) : 1000€ soit 83€ par mois. Les honoraires sont à la charge du vendeur.
Les informations sur les risques auxquels ce bien est exposé sont disponibles sur le site Géorisques : www. georisques. gouv. fr.

Réseau Immobilier CAPIFRANCE - Votre agent commercial (RSAC N°893 274 019 - Greffe de AJACCIO) Christelle BILLON Entrepreneur Individuel 06 20 01 00 04 - Réf.911207

Afficher plus de détails

Informations sur ce bien :

L'intérieur :

  • 3 pièces
  • 76 m²
    Informations complémentaires
    Surface habitable : 76 m²
  • 2 Chambres
  • 1 Salle de bain
  • 1 Toilette
  • Séjour de 24 m²
  • Grenier
  • Cave

L'extérieur :

  • Balcon
  • Parking extérieur
    Informations complémentaires
    Extérieur

Autres :

  • Chauffage :
    Électrique
  • Année de construction :
    1980
  • État :
    Intérieur : Bon / standard
  • Exposition :
    Est, Ouest, Traversant
  • Vue :
    Vue sur Mer, sur Village
  • Étage :
    3ème étage
    Informations complémentaires
    Nombre d'étages de la construction : 4

Copropriété :

  • Copropriété :
    Oui
  • Nombre de lots :
    87
  • Charges annuelles :
    999,96 €
Synthèse
Appartement à Sari-Solenzara
262 500 €
Surface : 76 m²
Prix au m² : 3 454 €
Transaction :
Achat
Référence :
340936523454
Date de publication :
Il y a plus de 7 jours
Appartement - 76 m² - 3 pièces
Performance énergétique
A
B
C
D
E
F
G
Gaz à effet de serre
A
B
C
D
E
F
G
Agent
CAPIFRANCE
CAPIFRANCE
Madame Christelle BILLON
Appeler
Écrire
Mettre en avant cette annonce
Signaler une erreur

Localisation :

L'adresse exacte n'est pas renseignée. Le bien se situe dans cette zone.

Performance énergétique :

Logement économe
A
B
C
143
kWh/m²/an
4
kg CO₂/m²/an
D
E
F
G
Logement énergivore
Faible émission de CO₂
A
4
kg CO₂/m²/an
B
C
D
E
F
G
Forte émission de CO₂
Date du diagnostic : 13 juillet 2025
Annonces similaires
Annonces immobilières récentes