Terrain constructible - 1 140 m² à Sancey-le-Long
favoris
48 000 €
Description :
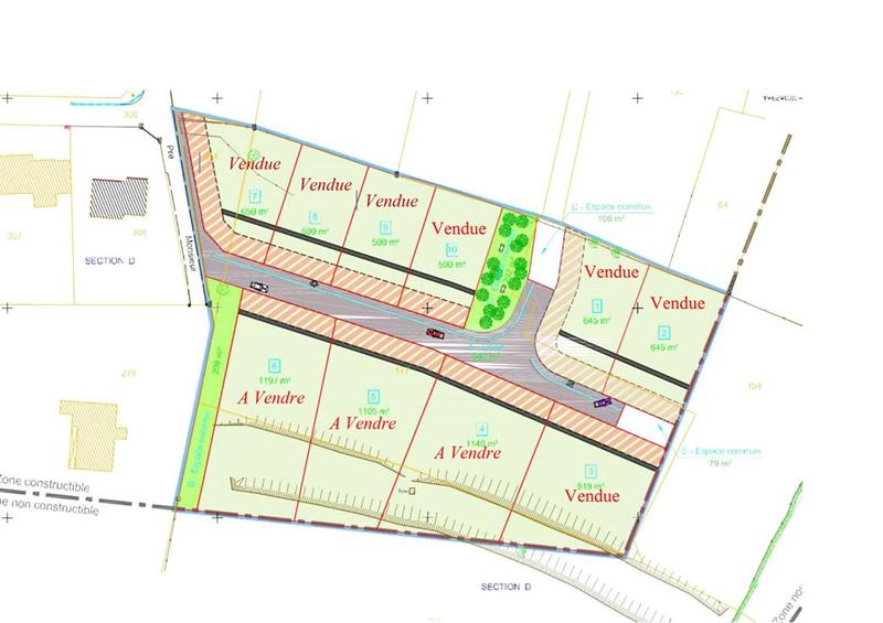
REF42969/1523 : Dans un petit lotissement en impasse, venez découvrir ce terrain viabilisé de 1140 m² ( lot n°4 sur le plan) idéalement situé en bordure de village avec vue imprenable . Plus que 4 lots disponibles, à découvrir sans tarder !
Contactez Pauline JOUILLEROT au 07.78.40.03.12.
Pauline JOUILLEROT (EI) Agent Commercial - Numéro RSAC : 953 724 796 - .
Afficher plus de détails
Informations sur ce bien :
L'intérieur :
-
1 140 m²
Terrain :
-
Viabilisé :Non
Synthèse
Terrain constructible à Sancey-le-Long
48 000 €
Surface :
1 140 m²
Prix au m² :
42 €
Transaction :
Achat
Référence :
42969
Date de publication :
Il y a plus de 7 jours
Contacter l'annonceur
Agent
SUISSE IMMO MAICHE
JOUILLEROT Pauline - Agent Commercial
Mettre en avant cette annonce
Signaler une erreur
Localisation :
L'adresse exacte n'est pas renseignée. Le bien se situe dans cette zone.
Ventes de terrains à proximité
- 3 ventes de terrains à Pierrefontaine-les-Varans (11.2 km)
- 1 vente de terrain à Pont-de-Roide (15.3 km)
- 5 ventes de terrains à Maîche (16 km)
- 2 ventes de terrains à Écot (16.5 km)
- 1 vente de terrain à Colombier-Fontaine (17.7 km)
- 2 ventes de terrains à Baume-les-Dames (19 km)
- 2 ventes de terrains à Lougres (19.5 km)
- 4 ventes de terrains à Étouvans (19.5 km)
- 3 ventes de terrains à Montenois (21.4 km)