• Maison - 117 m² - 5 pièces
  • Maison - 117 m² - 5 pièces
  • Maison - 117 m² - 5 pièces
  • Maison - 117 m² - 5 pièces
  • Maison - 117 m² - 5 pièces
815 000 €
117 m²
5 pièces
3 chambres

Description :

SANARY-SUR-MER - Quartier très recherché de Beaucours
Projet de villa T5 de 117 m² - Terrain de 473 m² - À deux pas de la mer
Dans le secteur prisé de Beaucours, à seulement quelques pas de la mer et 300 m des commerces, découvrez ce projet de villa T5 de 117 m², idéalement implanté sur un terrain calme de 473 m², piscinable.
Un projet moderne et personnalisable
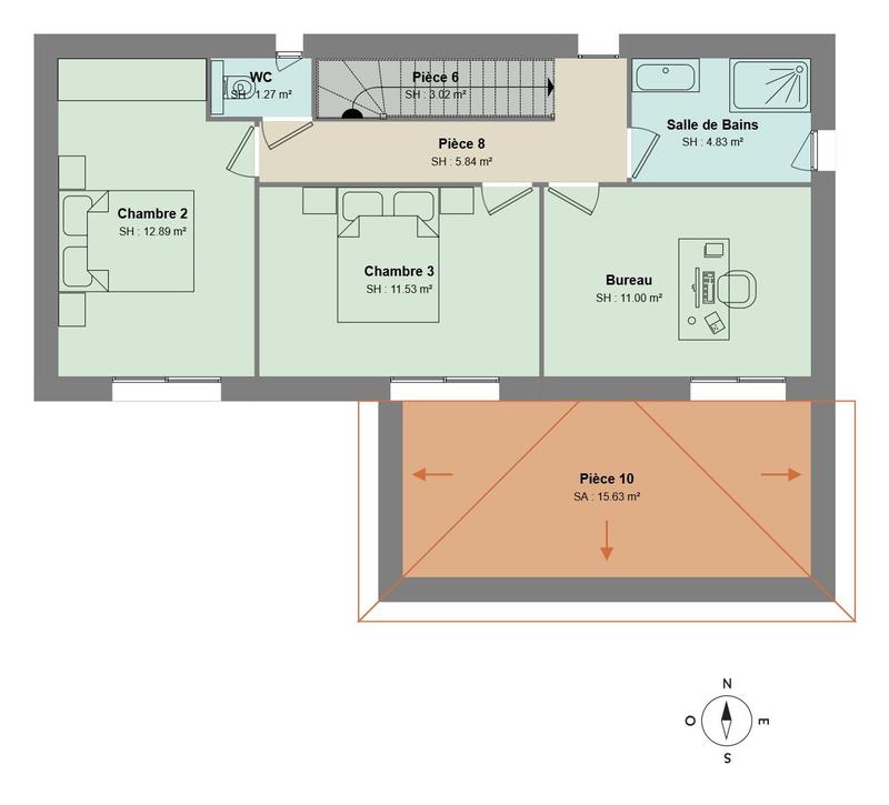
La villa se compose :
D'un spacieux séjour / cuisine de 45 m², ouvert sur une belle terrasse
D'une suite parentale de plain-pied avec salle d'eau et wc
À l'étage :2 chambres et un bureau (ou 3 chambres selon vos besoins)
Une salle d'eau
wc indépendants

Prestations prévues
Climatisation réversible
Chauffe-eau thermodynamique
Terrain piscinable
Environnement calme et résidentiel
(le budget indiqué ne comprend pas la piscine)
Informations complémentaires , norme RT2020
Le prix comprend les VRD et les viabilités, sous réserve de validation après étude technique, devis de terrassement et ajustement selon les contraintes du terrain.
Une opportunité rare de construire votre villa sur-mesure dans l'un des quartiers les plus recherchés de Sanary-sur-Mer, entre mer et commodités.
? Contactez-nous pour étudier votre projet !
0672218944 ou 0616125588

Non soumis au DPE. Les informations sur les risques auxquels ce bien est exposé sont disponibles sur le site Géorisques : georisques.gouv.fr.

Afficher plus de détails

Informations sur ce bien :

L'intérieur :

  • 5 pièces
  • 117 m²
  • 3 Chambres
  • 1 Salle de bain
  • 1 Salle d'eau
  • 2 Toilettes
  • Séjour de 45 m²

L'extérieur :

  • Terrasse
  • 2 Parkings
Synthèse
Maison à Sanary-sur-Mer
815 000 €
Surface : 117 m²
Prix au m² : 6 966 €
Transaction :
Achat
Référence :
YOURHOMEGERBILLE-SAJATIM
Mandat :
Exclusif
Date de publication :
Le 26 mars à 05:43
Maison - 117 m² - 5 pièces
Agent
Sajatim
Sajatim
Appeler
Écrire
Mettre en avant cette annonce
Signaler une erreur

Localisation :

L'adresse exacte n'est pas renseignée. Le bien se situe dans cette zone.

Performance énergétique :

Bien non soumis au Diagnostic de Performance Énergétique (DPE)

Annonces similaires
Annonces immobilières récentes