• Appartement - 48 m² - 2 pièces
  • Appartement - 48 m² - 2 pièces
248 500 €
48 m²
2 pièces

Description :

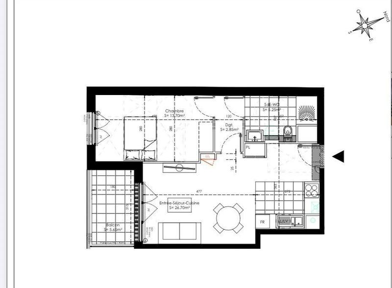
Iad France - Stéphane Gervasi (06 80 65 75 65) vous propose : *Programme NEUF * Avenue Gabriel Péri, Sur le secteur 'centre ville' de Sainte Geneviève des Bois proche de toutes les commodités, dans une petite Résidence de Standing de 9 appartements aux normes RT2020 et aux prestations soignées qui sera livrée au premier Trimestre 2027. Un appartement de type F2 de 48,60 m² environ habitable composé d'une pièce de vie de 28 m² environ avec coin cuisine, d'un couloir desservant une salle de douche équipée avec WC et une grande chambre de 13,50 mètres. Balcon de 4,75 m² environ. + Chauffage / eau chaude individuels au Gaz + Faibles Charges + Frais de notaire réduits et Prêt à taux zéro + D'autres lots disponibles. Contacter moi pour plus de détail. Honoraires d’agence à la charge du vendeur. Bien non soumis au DPE. Les informations sur les risques auxquels ce bien est exposé sont disponibles sur le site Géorisques : www.georisques.gouv.fr. La présente annonce immobilière a été rédigée sous la responsabilité éditoriale de M. Stéphane Gervasi EI (ID 16918), mandataire indépendant en immobilier (sans détention de fonds), agent commercial de la SAS I@D France immatriculé au RSAC de EVRY sous le numéro 511705873, titulaire de la carte de démarchage immobilier pour le compte de la société I@D France SAS. Retrouvez tous nos biens sur notre site internet. www.iadfrance.fr.

Afficher plus de détails

Informations sur ce bien :

L'intérieur :

  • 2 pièces
  • 48 m²
    Informations complémentaires
    Surface habitable : 48 m²
  • Séjour

L'extérieur :

  • Terrasse
  • Balcon de 4 m²

Les équipements :

  • Ascenseur
  • Interphone
  • Digicode

Autres :

  • Chauffage :
    Collectif, Radiateur, Gaz
  • Mitoyenneté :
    Non
Synthèse
Appartement à Sainte-Geneviève-des-Bois
248 500 €
Surface : 48 m²
Prix au m² : 5 177 €
Transaction :
Achat
Référence :
1986117
Date de publication :
Aujourd'hui à 07:46
Appartement - 48 m² - 2 pièces
Agent
iad france
iad france
Stéphane Gervasi
Appeler
Écrire
Mettre en avant cette annonce
Signaler une erreur

Localisation :

L'adresse exacte n'est pas renseignée. Le bien se situe dans cette zone.
Annonces similaires
Annonces immobilières récentes