• Terrain - 465 m²
  • Terrain - 465 m²
  • Terrain - 465 m²
  • Terrain - 465 m²
  • Terrain - 465 m²
275 000 €
465 m²

Description :

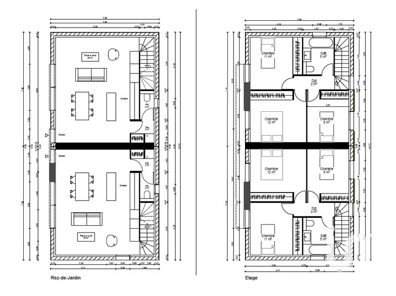
Iad France - Sébastien De Ville vous propose : Terrain à bâtir de 465 m² avec un permis déposé pour une maison individuelle de 2 logements mitoyens. Le terrain est situé dans un secteur recherché de Saint Savournin, il est viabilisé. Le permis comporte 2 logements T4 d'environ 85 m² selon les plans en photos, un jardin et 4 places de stationnement. Contactez moi pour plus d'informations. Honoraires d'agence à la charge du vendeur. Bien non soumis au DPE. Les informations sur les risques auxquels ce bien est exposé, y compris l'obligation légale de débroussaillement, sont disponibles sur le site Géorisques : http://www.georisques.gouv.fr. La présente annonce immobilière a été rédigée sous la responsabilité éditoriale de M Sébastien De Ville mandataire indépendant en immobilier (sans détention de fonds), agent commercial de la SAS I@D France immatriculé au RSAC de Aix en Provence sous le numéro 879815462, titulaire de la carte de démarchage immobilier pour le compte de la société I@D France SAS.

Afficher plus de détails

Informations sur ce bien :

L'intérieur :

  • 465 m²

Autres :

  • Mitoyenneté :
    Non

Terrain :

  • Viabilisé :
    Non
Synthèse
Terrain à Saint-Savournin
275 000 €
Surface : 465 m²
Prix au m² : 591 €
Transaction :
Achat
Référence :
1724851
Date de publication :
Il y a plus de 7 jours
Terrain - 465 m²
Agent
iad france
iad france
Sébastien De Ville
Appeler
Écrire
Mettre en avant cette annonce
Signaler une erreur

Localisation :

L'adresse exacte n'est pas renseignée. Le bien se situe dans cette zone.
Annonces similaires
Annonces immobilières récentes