Parking - 24 m² à Saint-Raphaël
Description :
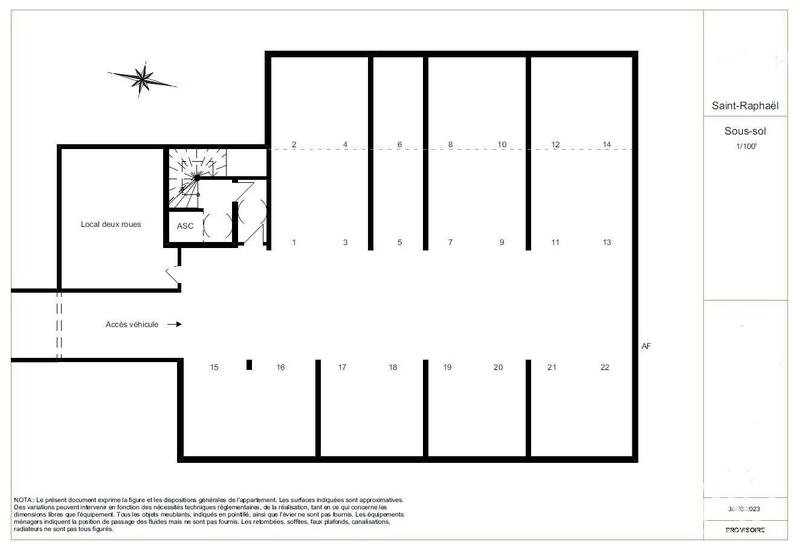
Iad France - Céline Inaudi (06 58 44 63 26) vous propose : À VENDRE DOUBLES PLACES DE PARKING EN ENFILADE Au sous-sol d'une résidence sécurisée à Saint-Raphaël - quartier Boulouris. Il reste 3 doubles places de parking disponibles au sein d’une résidence récente et sécurisée. Chaque emplacement est composé de deux places en enfilade (l’une derrière l’autre), idéal pour stationner 2 véhicules ou un véhicule + stockage. Places disponibles : la 9-10 / 7-8 / 5-6 Accès sécurisé (résidence fermée) ManOEuvres faciles Idéal usage privatif, ou investissement locatif Forte demande de stationnement sur le secteur Charges faibles Surface indicative par double place : environ 23 à 25 m² environ Prix attractif – opportunité rare sur le secteur Contactez-moi rapidement, les emplacements sont en nombre limité. Honoraires d’agence à la charge du vendeur. Bien non soumis au DPE. Les informations sur les risques auxquels ce bien est exposé sont disponibles sur le site Géorisques : www.georisques.gouv.fr. La présente annonce immobilière a été rédigée sous la responsabilité éditoriale de Mlle Céline Inaudi EI (ID 85801), mandataire indépendant en immobilier (sans détention de fonds), agent commercial de la SAS I@D France immatriculé au RSAC de Avignon sous le numéro 532514403, titulaire de la carte de démarchage immobilier pour le compte de la société I@D France SAS. Retrouvez tous nos biens sur notre site internet. www.iadfrance.fr.
Informations sur ce bien :
L'intérieur :
-
24 m²Informations complémentairesSurface habitable : 24 m²
Autres :
-
Mitoyenneté :Non
Localisation :
Ventes de parkings et garages à proximité
- 14 ventes de parkings et garages à Fréjus (2.7 km)
- 1 vente de parking et garage à Puget-sur-Argens (7.6 km)
- 1 vente de parking et garage à Roquebrune-sur-Argens (10.7 km)
- 3 ventes de parkings et garages à Sainte-Maxime (16.4 km)
- 4 ventes de parkings et garages à Théoule-sur-Mer (16.5 km)
- 15 ventes de parkings et garages à Mandelieu-la-Napoule (19.2 km)
- 50 ventes de parkings et garages à Cannes (24.6 km)
- 11 ventes de parkings et garages au Cannet (26.3 km)
- 2 ventes de parkings et garages à La Garde-Freinet (27 km)