• Terrain - 328 m²
  • Terrain - 328 m²
  • Terrain - 328 m²
150 960 €
328 m²

Description :

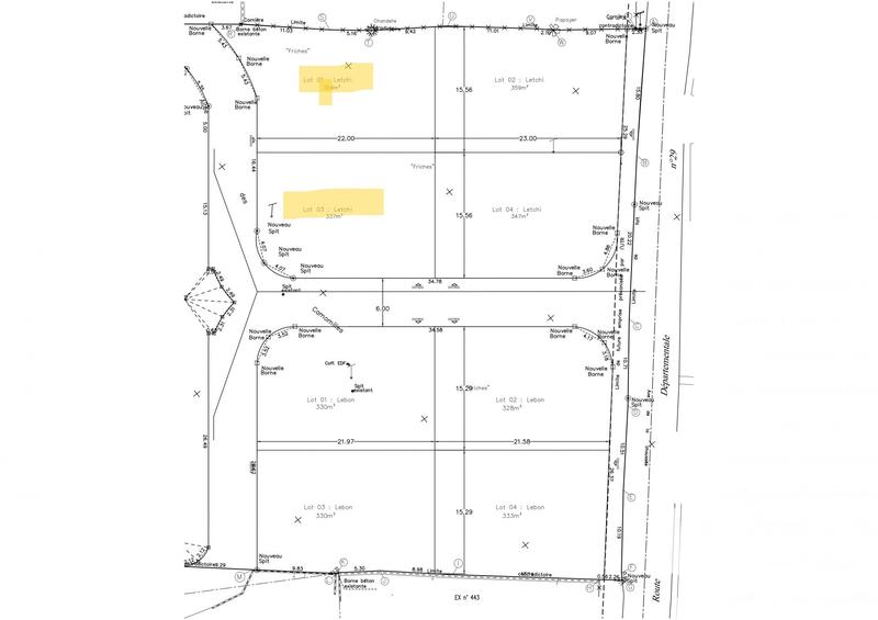
Iad France - Mathieu Hoareau vous propose : Terrain constructible à Monts-les-Bas (haut du Chemin Lebon) Opportunité à ne pas manquer ! Dans un secteur calme, recherché et parfaitement situé, découvrez ce terrain d’environ 328 m², plat, en zone UF, idéal pour votre future construction. Emprise au sol 50%, 6M a l'égout et 11M au faitage ✔ Points forts : Terrain prêt à bâtir (réseaux électricité, eau et télécom à proximité) Environnement agréable à 380 m d’altitude À seulement 10 minutes du CHU Proche des commodités : commerces, écoles, transports Accès facile, quartier résidentiel prisé ⚠ Les terrains indiqués en jaune sur le plan sont déjà vendus. Idéal pour un premier projet, une résidence principale ou un investissement. Honoraires d'agence à la charge du vendeur. Bien non soumis au DPE. Les informations sur les risques auxquels ce bien est exposé, y compris l'obligation légale de débroussaillement, sont disponibles sur le site Géorisques : http://www.georisques.gouv.fr. La présente annonce immobilière a été rédigée sous la responsabilité éditoriale de M Mathieu Hoareau mandataire indépendant en immobilier (sans détention de fonds), agent commercial de la SAS I@D France immatriculé au RSAC de SAINT PIERRE DE LA REUNION sous le numéro 949522072, titulaire de la carte de démarchage immobilier pour le compte de la société I@D France SAS.

Afficher plus de détails

Informations sur ce bien :

L'intérieur :

  • 328 m²

Autres :

  • Mitoyenneté :
    Non

Terrain :

  • Viabilisé :
    Non
Synthèse
Terrain à Saint-Pierre
150 960 €
Surface : 328 m²
Prix au m² : 460 €
Transaction :
Achat
Référence :
1968589
Date de publication :
Il y a plus de 7 jours
Terrain - 328 m²
Agent
iad france
iad france
Mathieu Hoareau
Appeler
Écrire
Mettre en avant cette annonce
Signaler une erreur

Localisation :

L'adresse exacte n'est pas renseignée. Le bien se situe dans cette zone.
Annonces similaires
Annonces immobilières récentes