• Maison - 206 m² - 7 pièces
  • Maison - 206 m² - 7 pièces
  • Maison - 206 m² - 7 pièces
  • Maison - 206 m² - 7 pièces
  • Maison - 206 m² - 7 pièces
  • Maison - 206 m² - 7 pièces
  • Maison - 206 m² - 7 pièces
  • Maison - 206 m² - 7 pièces
  • Maison - 206 m² - 7 pièces
  • Maison - 206 m² - 7 pièces
  • Maison - 206 m² - 7 pièces
  • Maison - 206 m² - 7 pièces
  • Maison - 206 m² - 7 pièces
  • Maison - 206 m² - 7 pièces
  • Maison - 206 m² - 7 pièces
  • Maison - 206 m² - 7 pièces
1 740 000 €
206 m²
7 pièces
3 chambres

Description :

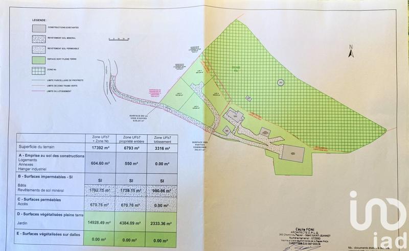
Iad France - Nadine Bernier vous propose : Propriété au Calme avec Vue Panoramique – Saint-Martin-du-Var 06670, possible sur demande de pèrmis construction sur le terrain, Quartier des Condamines Située dans un secteur très recherché, cette propriété de 1,7 hectare, exposée plein sud, offre un cadre de vie préservé, sans vis-à-vis, avec une vue dominante sur la vallée du Var, Carros Village et Le Broc. L’accès se fait par une route privée en impasse, garantissant une tranquillité totale. Elle se compose de deux habitations indépendantes : Maison provençale des années 40, entièrement rénovée, actuellement aménagée en deux appartements pouvant être réunis. Charme authentique, terrasses, cheminée, poêle à bois, bon DPE. Maison en bois de plain-pied, atypique et chaleureuse, équipée d’un poêle à bois et d’un chauffe-eau solaire. Parfait pour un mode de vie nature, une activité d’accueil ou un logement annexe. Le terrain comprend également : Ancien bâtiment agricole d’environ 300 m² (actuellement utilisé en chenil) Double garage, atelier, nombreuses places de stationnement Petite écurie pouvant accueillir jusqu’à 2 chevaux Bassin d’irrigation à remettre en service Pinède, oliviers centenaires, figuiers, chênes, cyprès… Côté urbanisme : 6 793 m² constructibles et piscinables autour de la maison principale (zone UD – R + 1 – COS 0,15 %, bâti existant inclus) Viabilités en gravitaire Projet de lotissement de 4 lots en cours d’étude sur une partie du terrain constructible (3 316 m²) Localisation idéale : 2 min de la RM6202 5 min commerces, écoles, crèche, collège, transports 15 min Allianz Riviera 20 min Aéroport de Nice 40 min Cannes – 45 min Monaco 1 h des stations de ski (Beuil / Valberg) Un bien rare, proche de toutes commodités tout en offrant un cadre exceptionnel et un fort potentiel d’aménagement. À visiter sans tarder. Honoraires d'agence à la charge du vendeur. Information d'affichage énergétique sur ce bien : classe ENERGIE C indice 122 et classe CLIMAT A indice 3. Les informations sur les risques auxquels ce bien est exposé, y compris l'obligation légale de débroussaillement, sont disponibles sur le site Géorisques : http://www.georisques.gouv.fr. La présente annonce immobilière a été rédigée sous la responsabilité éditoriale de Mme Nadine Bernier mandataire indépendant en immobilier (sans détention de fonds), agent commercial de la SAS I@D France immatriculé au RSAC de NICE sous le numéro 813648151, titulaire de la carte de démarchage immobilier pour le compte de la société I@D France SAS.

Afficher plus de détails

Informations sur ce bien :

L'intérieur :

  • 7 pièces
  • 206 m²
    Informations complémentaires
    Surface habitable : 206 m²
  • 3 Chambres
  • Cave

L'extérieur :

  • Terrasse
  • Parking
  • Box

Les équipements :

  • Cheminée

Autres :

  • Chauffage :
    Électrique
  • Année de construction :
    1940
  • Mitoyenneté :
    Non
Synthèse
Maison à Saint-Martin-du-Var
1 740 000 €
Surface : 206 m²
Prix au m² : 8 447 €
Transaction :
Achat
Référence :
1842513
Date de publication :
Il y a plus de 7 jours
Maison - 206 m² - 7 pièces
Performance énergétique
A
B
C
D
E
F
G
Gaz à effet de serre
A
B
C
D
E
F
G
Agent
iad france
iad france
Nadine Bernier
Appeler
Écrire
Mettre en avant cette annonce
Signaler une erreur

Localisation :

L'adresse exacte n'est pas renseignée. Le bien se situe dans cette zone.

Performance énergétique :

Logement économe
A
B
C
122
kWh/m²/an
3
kg CO₂/m²/an
D
E
F
G
Logement énergivore
Faible émission de CO₂
A
3
kg CO₂/m²/an
B
C
D
E
F
G
Forte émission de CO₂
Date du diagnostic : 14 novembre 2024
Annonces similaires
Annonces immobilières récentes