• Appartement - 62 m² - 3 pièces
  • Appartement - 62 m² - 3 pièces
  • Appartement - 62 m² - 3 pièces
415 000 €
62 m²
3 pièces
2 chambres

Description :

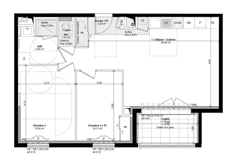
Saint Malo - 3 pièces 62.14m² Sud- loggia de 5.18m² - 2ème étage - ascenseur - stationnements en sous-sol sécurisés A 900 mètres des plages, des commodités et des commerces, dans un quartier résidentiel au calme, au sein d' une résidence de standing aux dernières normes RT2020, alliant confort moderne et performance énergétique, au deuxième étage avec ascenseur, cet appartement de 3 pièces de 82.35 m² au Sud, se compose d' une entrée avec placard, d'un séjour salon avec cuisine ouverte donnant accès à une loggia de 5.18m², deux chambres, une salle d'eau, WC indépendant. Deux stationnements en sous-sol sécurisés complètent ce bien. Prestations de qualité : Performances énergétiques RT2020 - Accès sécurisé par badge et visiophone.. Prix promoteur - frais de notaire réduits. Les informations sur les risques auxquels ce bien est exposé sont disponibles sur le site Géorisques : www.georisques.gouv.fr. Copropriété de 57 lots - dont 17 lots habitation. (Pas de procédure en cours). Charges annuelles : 892 euros.

Afficher plus de détails

Informations sur ce bien :

L'intérieur :

  • 3 pièces
  • 62 m²
    Informations complémentaires
    Surface habitable : 62 m²
  • 2 Chambres
  • 1 Salle d'eau
  • 1 Toilette

L'extérieur :

  • Balcon de 5 m²
  • 2 Parkings

Les équipements :

  • Ascenseur
  • Tout à l'égout

Autres :

  • Chauffage :
    Individuel, Radiateur, Gaz
  • Exposition :
    Sud
  • Étage :
    2nd étage
    Informations complémentaires
    Nombre d'étages de la construction : 3
  • Nombre de niveaux :
    1

Copropriété :

  • Copropriété :
    Oui
  • Nombre de lots :
    57
  • Charges annuelles :
    892 €
  • Procédure :
    Pas de procédure en cours
Synthèse
Appartement à Saint-Malo
415 000 €
Surface : 62 m²
Prix au m² : 6 694 €
Transaction :
Achat
Référence :
6262-23
Date de publication :
Aujourd'hui à 11:20
Appartement - 62 m² - 3 pièces
Agent
Cabinet Moraine Immobilier
Cabinet Moraine Immobilier
Appeler
Écrire
Mettre en avant cette annonce
Signaler une erreur

Localisation :

L'adresse exacte n'est pas renseignée. Le bien se situe dans cette zone.

Performance énergétique :

Bien non soumis au Diagnostic de Performance Énergétique (DPE)

Annonces similaires
Annonces immobilières récentes