• Maison - 79 m²
  • Maison - 79 m²
419 477 €
79 m²

Description :

GREEN HABITAT Atlantique, du groupe GREEN HABITAT, spécialiste de la maison à base de container maritime vous propose ce projet de construction. Les maisons GREEN HABITAT Atlantique sont totalement ancrées dans la construction durable et respectent la RE2020. Produit le plus écoresponsable du marché grâce entre autres, à son choix de matériaux (biosourcés, 100% recyclables et recyclés), son process de fabrication industriel (délais raccourcis, traitement de déchets, recyclage), et son économie à l’usage (toit végétalisé pour un confort d’été optimal, panneaux photovoltaïques en autoconsommation et revente du surplus et récupérateur d’eau de pluie couplé à la chasse d’eau permettant jusqu’à 80% d’économie d’eau potable). ITE, isolation par l’extérieure. Véritablement modulaire nos maisons évoluent tout au long de votre vie en s’adaptant à vos besoins et vos envies (extensions, surélévations…), nos maisons grandissent avec vos projets.
Le terrain : situé sur la commune en pleine expansion de Saint Magne, à 40 mn de Bordeaux et du Bassin d’Arcachon. Au milieu d’une nature omniprésente à proximité d’un grand plan d’eau. Belle parcelle de 821 m², bien proportionné au sein d’un petit lotissement. Entièrement viabilisée, proche du centre du village. Sur ce projet nous proposons plusieurs solutions dont :
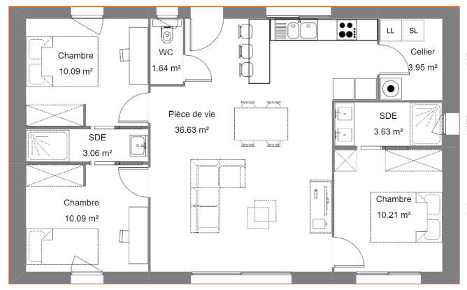
Une maison d’environ 79 m² habitable de plain pied. Faite à base de 3 containers de 40 pieds, elle est composée d’une entrée avec WC, d’un cellier, d’une belle suite parentale avec sa grande salle d’eau. Également une belle pièce de vie lumineuse de plus de 35 m², parfaite pour recevoir. Vous découvrirez également deux autres chambres de plus de 10 m² et une deuxième salle d'eau. Design très contemporain, cette maison a tout pour plaire. Possibilité de hors d’eau hors d’air, nos prestations sont « à la carte » vous pouvez faire le choix de conserver à votre charge la plupart des postes, et ainsi moduler le prix final. Pour de plus amples informations, contactez votre conseiller GREEN HABITAT Atlantique : Olivier au 06 21 69 45 06. Terrain présenté par l’un de nos partenaires fonciers.
Le prix affiché comprend, le terrain 160 000 euros, frais annexe (frais de notaire, raccordement, ASL, taxe d’aménagement…) environ 28 601 euros, la maison prête à décorer 230 876 euros toutes options (toit végétalisé pour un confort d’été optimal, panneaux photovoltaïques en autoconsommation et revente du surplus et récupérateur d’eau de pluie couplé à la chasse d’eau permettant jusqu’à 80% d’économie d’eau potable)

Afficher plus de détails

Informations sur ce bien :

L'intérieur :

  • 79 m²
    Informations complémentaires
    Surface habitable : 79 m²
Synthèse
Maison à Saint-Magne
419 477 €
Surface : 79 m²
Prix au m² : 5 310 €
Transaction :
Neuf
Référence :
OV-STMA-3CM-PP-79-2CH-1S-PAD-TTNA
Nom du programme :
Maison Design à Base de Containers Maritime
Date de publication :
Il y a plus de 7 jours
Maison - 79 m²
Agent
GREEN HABITAT Atlantique
GREEN HABITAT Atlantique
Olivier VAUNOIS
Appeler
Écrire
Mettre en avant cette annonce
Signaler une erreur

Localisation :

L'adresse exacte n'est pas renseignée. Le bien se situe dans cette zone.
Annonces similaires
Annonces immobilières récentes