• Appartement - 39 m² - 2 pièces
  • Appartement - 39 m² - 2 pièces
  • Appartement - 39 m² - 2 pièces
179 500 €
39 m²
2 pièces
1 chambre

Description :

A VENDRE - PROGRAMME NEUF - SAINT JEAN DE MONTS Devenez propriétaire à deux pas de l'océan, à Saint-Jean-de-Monts ! A seulement 400 mètres de la plage des Demoiselles, découvrez la résidence neuve CYMO, idéalement située, dans un quartier paisible de la Plage des Demoiselles. Pensée pour votre confort au quotidien, cette résidence à taille humaine propose 23 appartements, du studio au T4, répartis sur seulement trois étages. Son architecture balnéaire s'intègre parfaitement dans son environnement côtier. Chaque logement bénéficie d'un espace de vie lumineux, prolongé par un balcon ou une terrasse, pour profiter pleinement de l'air marin. Les prestations intérieures ont été soigneusement sélectionnées : sols stratifiés dans les chambres, carrelage et faïence dans les pièces d'eau, menuiseries de qualité, etc. La résidence est équipée d'un ascenseur et dispose d'un parking extérieur sécurisé, pour vous garantir tranquillité et accessibilité. Livraison 3e trimestre 2027 Réf.10561-102 Pour toute information complémentaire ou visite, contactez-nous au 02.51.58.01.74 ou par mail stjean261@ladresse.com

Afficher plus de détails

Informations sur ce bien :

L'intérieur :

  • 2 pièces
  • 39 m²
    Informations complémentaires
    Surface habitable : 39 m²
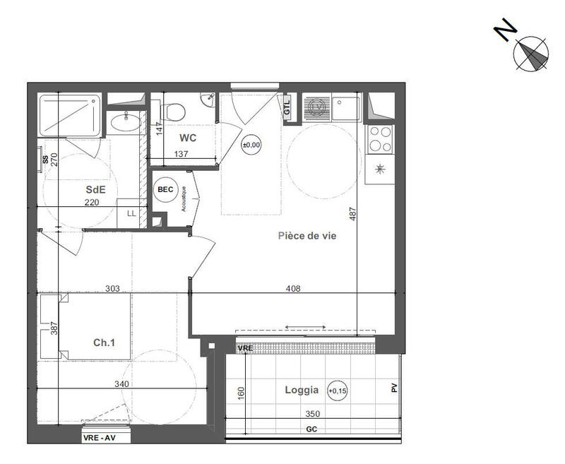
  • 1 Chambre de 12 m²
    Informations complémentaires
    Rdc
  • 1 Salle d'eau de 5 m²
    Informations complémentaires
    Rdc
  • 1 Toilette de 1 m²
    Informations complémentaires
    Rdc
  • Pièce de vie de 19 m²
    Informations complémentaires
    1er étage

L'extérieur :

  • Balcon de 5 m²
    Informations complémentaires
    Rdc
  • Parking

Les équipements :

  • Ascenseur
  • Tout à l'égout

Autres :

  • Année de construction :
    2027
  • Étage :
    1er étage
    Informations complémentaires
    Nombre d'étages de la construction : 3
  • Nombre de niveaux :
    1
Synthèse
Appartement à Saint-Jean-de-Monts
179 500 €
Surface : 39 m²
Prix au m² : 4 603 €
Transaction :
Achat
Référence :
10561-104
Date de publication :
Il y a plus de 7 jours
Appartement - 39 m² - 2 pièces
Agent
L'Adresse - Agence de l'Esplanade - Plage des Demoiselles
L'Adresse - Agence de l'Esplanade - Plage des Demoiselles
Appeler
Écrire
Mettre en avant cette annonce
Signaler une erreur

Localisation :

L'adresse exacte n'est pas renseignée. Le bien se situe dans cette zone.

Performance énergétique :

Bien non soumis au Diagnostic de Performance Énergétique (DPE)

Annonces similaires
Annonces immobilières récentes