Maison - 83 m² - 4 pièces à Saint-Jean-de-Bournay
favoris
259 000 €
Description :
NouveauEt si vous construisiez la maison de vos rêves ? " Imaginez une maison parfaitement adaptée à votre style de vie, pensée selon vos envies et construite pour votre confort. Plus qu'un projet, c'est une aventure unique ou chaque détail compte : - Un accompagnement de A a Z - Un design à votre image - un espace optimisé pour votre bien-être - Des Matériaux modernes et durables - Une vraie valeur patrimoniale Avec Mme Fahem Najoie Maison Punch Bourgon Jallieu , construisez bien plus qu'une maison ; créez un foyer ou grandir, partager et s'épanouir Contactez moi dès aujourd'hui et donnons vie à votre projet tél 06 37 41 29 00 Prix inclus terrain , maison, Vrd , viabilisation
Afficher plus de détails
Informations sur ce bien :
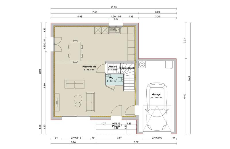
L'intérieur :
-
4 pièces
-
83 m²
-
3 Chambres
-
1 Salle de bain
L'extérieur :
-
Garage
À proximité :
-
Accès voie rapide
-
Centre-ville
-
Commerces
-
Ecoles
-
Transports en commun
Autres :
-
Style :Traditionnelle
Synthèse
Maison à Saint-Jean-de-Bournay
259 000 €
Surface :
83 m²
Prix au m² :
3 120 €
Transaction :
Neuf
Référence :
13357 FAHEM NAJOIE
Date de publication :
Aujourd'hui à 02:45
Contacter l'annonceur
Agent
Maisons Punch - Bourgoin Jallieu
Mettre en avant cette annonce
Signaler une erreur
Localisation :
L'adresse exacte n'est pas renseignée. Le bien se situe dans cette zone.
Ventes de maisons à proximité
- 5 ventes de maisons à Artas (4.1 km)
- 1 vente de maison à Villeneuve-de-Marc (4.3 km)
- 5 ventes de maisons à Charantonnay (4.5 km)
- 4 ventes de maisons à Meyrieu-les-Étangs (4.8 km)
- 1 vente de maison à Beauvoir-de-Marc (5.1 km)
- 6 ventes de maisons à Châtonnay (5.5 km)
- 10 ventes de maisons à Savas-Mépin (5.8 km)
- 2 ventes de maisons à Lieudieu (6 km)
- 12 ventes de maisons à Saint-Georges-d'Espéranche (7.5 km)