• Villa - 152 m² - 5 pièces
  • Villa - 152 m² - 5 pièces
  • Villa - 152 m² - 5 pièces
  • Villa - 152 m² - 5 pièces
  • Villa - 152 m² - 5 pièces
695 000 €
152 m²
5 pièces
4 chambres

Description :

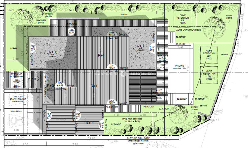
A 20 minutes de Montpellier, nous vous présentons en exclusivité sur Saint-Géniès-des-Mourgues une parcelle de 500m2 et son projet de construction d'une villa en R+1 de 152 m2 habitables avec piscine enterrée, l'ensemble étant validé par un permis de construire.
Les perspectives visuelles ci-dessus correspondent à la réalité de la future construction.
La particularité du projet ? Une villa entièrement dessinée par un architecte avec un ensemble compact, formé par l'imbrication de plusieurs volumes simples. Cet ensemble est recouvert par des toitures à doubles pentes et des toits terrasses non accessibles, formant un tout respectueux de l'architecture languedocienne.
L'expérience engrangée par l'architecte du projet vous assure un suivi et une rigueur jusqu'à la remise des clés.
Des prestations haut de gamme à la hauteur des exigences de l'architecte du projet :
- Construction sur vide sanitaire sous la récente Norme environnementale RE2020 ;
- Carrelage 60 x 60 ;
- Porte d'entrée sécurité 3 points ;
- Peinture lisse toutes hauteurs ;
- Portes intérieures pleines ;
- Volets roulants électriques ;
- Climatisation réversible gainable ;
- Gestion des eaux pluviales par des cuves enterrées de rétention avec possibilité de réutiliser l'eau pour l'arrosage du jardin ;
- Des arbres de haute tige d'essence locale (olivier, cerisier et savonnier).

Cet habitat de 152 m2 environ se décompose de la manière suivante :
- Au niveau rez-de-chaussée, un séjour de 44,68 m2, une cuisine de 15,65 m2 ; une chambre de 14,09 m2, un dressing de 5,04 m2, une salle d'eau avec douche à l'italienne, un wc séparé.
- A l'étage, 3 chambres de 11,76 m2 à 14,31 m2, une salle de bains et un wc.

Annexes :
- Une piscine enterrée 3x6 ;
- Un garage de 21,15 m2 ;
- Un abri de 5,31 m2 ;
- Une terrasse de 34,1 m2.

A proximité de l'autoroute A9 (10mn), de la plage et de tous les commerces.
Livraison fin 2023.
Non soumis au DPE.
Prix de vente (terrain + construction projet) : 695 000 EUR, honoraires à la charge du vendeur. Hors frais de notaire, de raccordement et de branchement aux réseaux publics, et de taxes diverses.
Vous avez des questions ? N'hésitez pas à contacter Servan COULON pour consulter le permis de construire en détail.
Statut du négociateur : Gérant de SARL détenteur de la Carte professionnelle de Transaction.
Proche Montpellier, Baillargues, Saint Aunès, Castries, Vendargues, Castelnau Le Lez, Lattes, Pérols, Carnon, Mauguio.

Afficher plus de détails

Informations sur ce bien :

L'intérieur :

  • 5 pièces
  • 152 m²
  • 4 Chambres
  • Sans cuisine
    Informations complémentaires
    Sans cuisine
  • 1 Salle de bain
  • 1 Salle d'eau
  • 2 Toilettes
  • Séjour de 44 m²

L'extérieur :

  • Terrasse
  • Piscine
  • 2 Parkings
  • Box

Les équipements :

  • Climatisation

Autres :

  • Chauffage :
    Individuel
  • Année de construction :
    2023
Synthèse
Villa à Saint-Geniès-des-Mourgues
695 000 €
Surface : 152 m²
Prix au m² : 4 572 €
Transaction :
Achat
Référence :
COVI10000053
Mandat :
Exclusif
Date de publication :
Il y a plus de 7 jours
Villa - 152 m² - 5 pièces
Performance énergétique
A
B
C
D
E
F
G
Gaz à effet de serre
A
B
C
D
E
F
G
Agent
CONFIDERE IMMOBILIER
CONFIDERE IMMOBILIER
COULON Servan
Appeler
Écrire
Mettre en avant cette annonce
Signaler une erreur

Localisation :

L'adresse exacte n'est pas renseignée. Le bien se situe dans cette zone.

Performance énergétique :

Logement économe
A
≤ 6
kg CO₂/m²/an
B
C
D
E
F
G
Logement énergivore
Faible émission de CO₂
A
≤ 6
kg CO₂/m²/an
B
C
D
E
F
G
Forte émission de CO₂
Annonces similaires
Annonces immobilières récentes