Local d'activités - 61 m² - 2 pièces à Saint-Gaudens
favoris
700 € / mois
Description :
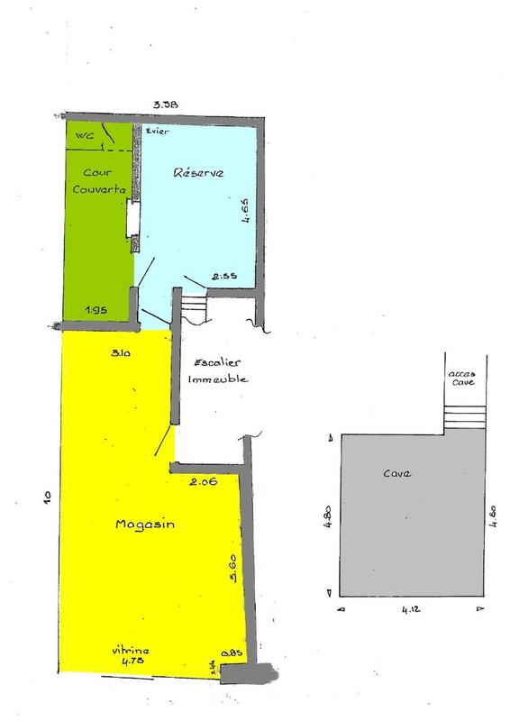
SAINT GAUDENS hyper centre, emplacement TOP proche halle gourmande, pour ce beau local commercial de 61 m² avec vitrine sur rue. Ce local commercial avec accès PMR comprend une vitrine de 4.5 ml sur rue avec porte électrique automatique et grille de sécurité, une boutique de 43 m² environ, une réserve/ espace de stockage avec un évier de 17 m² environ, un WC et une cour couverte de 19 m² environ. Bail commercial tous commerces sauf nuisances. Bail commercial courte durée possible OU bail professionnel de 6 ans Libre de suite Loyer mensuel net de taxe de 700 € (non soumis à TVA) Dépôt de garantie : 700 € Charges : TEOM régularisation sur facture Honoraires de location : 840 € TTC
Afficher plus de détails
Informations sur ce bien :
L'intérieur :
-
2 pièces
-
61 m²Informations complémentairesSurface habitable : 61 m²
Autres :
-
État :TBEG
-
Mitoyenneté :Non
-
Exposition :Nord, Sud
-
Étage :RDC
Synthèse
Local d'activités à Saint-Gaudens
700 € / mois
Surface :
61 m²
Transaction :
Location (locaux professionnels)
Référence :
311581164
Montant de la caution :
700 €
Honoraires :
840 €
Informations complémentaires
Dont honoraires état des lieux : 168 €
Mandat :
Exclusif
Date de publication :
Il y a plus de 7 jours
Contacter l'annonceur
Agent
AAREVA Immobilier
Mettre en avant cette annonce
Signaler une erreur
Localisation :
L'adresse exacte n'est pas renseignée. Le bien se situe dans cette zone.
Performance énergétique :
Bien non soumis au Diagnostic de Performance Énergétique (DPE)
Location de locaux d'activités et entrepôts à proximité
- 3 location de locaux d'activités et entrepôts à Lherm (54.1 km)
- 3 location de locaux d'activités et entrepôts à Tarbes (54.2 km)
- 1 location de local d'activité et entrepôt à Fontenilles (62.3 km)
- 1 location de local d'activité et entrepôt à Fonsorbes (62.8 km)
- 2 location de locaux d'activités et entrepôts à Muret (63 km)
- 1 location de local d'activité et entrepôt à Plaisance-du-Touch (68.7 km)
- 1 location de local d'activité et entrepôt à Brax (70.4 km)
- 4 location de locaux d'activités et entrepôts à Pamiers (71.7 km)
- 1 location de local d'activité et entrepôt à Saint-Jean-du-Falga (73.2 km)