Local d'activités - 824 m² à Saint-Étienne
Description :
AVENDRE - Locaux professionnels à Saint-Étienne Emplacement idéal : Situés à Saint-Étienne, dans un secteur dynamique et facilement accessible (proche axes routiers, tram/bus, centre-ville ou zone industrielle selon le cas), ces locaux offrent une belle visibilité et un environnement propice à l'activité professionnelle.
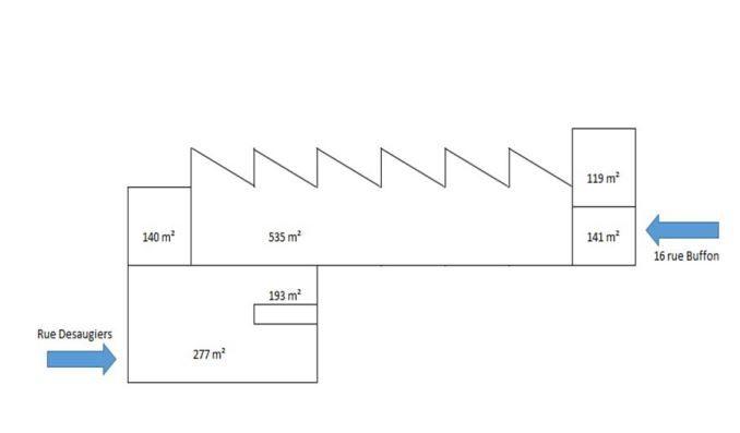
Surface : 824 m² traversants, grand espace de 535 m2, bureau sur 2 niveau (119m2 +141m) sous sol pour 17 places de parking 277m2+réserve 193m2. Monte charge reliant les niveaux.
Description :
Plusieurs bureaux cloisonnés / open-space
Espace accueil / salle de réunion
Coin cuisine / sanitaires
Connexion internet haut débit
Accès PMR (si applicable) [ex : Parking privé / places disponibles à proximité]
? Convient parfaitement pour : professions libérales, start-ups, PME, cabinet médical, showroom, atelier propre...
Locaux sécurisés - prêts à l'emploi / à aménager selon votre activité.
Prix de vente : 462000 euro
Contactez-nous dès maintenant pour plus d'informations ou pour organiser une visite :
Au O625395092.
Honoraires inclus de 5% à la charge de l'acquéreur. Prix hors honoraires 440 000 €. DPE en cours. Les informations sur les risques auxquels ce bien est exposé sont disponibles sur le site Géorisques : georisques.gouv.fr.
Votre conseiller COMPÉTENCES IMMO : Nisa Labich
Agent commercial (Entreprise individuelle)
Informations sur ce bien :
L'intérieur :
-
824 m²
L'extérieur :
-
Parking
Les équipements :
-
Ascenseur
Autres :
-
Étage :RDC
Localisation :
Vente de locaux d'activité et entrepôt à proximité
- 12 vente de locaux d'activité et entrepôt à Saint-Genest-Lerpt (3.8 km)
- 1 vente de local d'activité et entrepôt à Roche-la-Molière (5.1 km)
- 1 vente de local d'activité et entrepôt à La Talaudière (5.8 km)
- 3 vente de locaux d'activité et entrepôt au Chambon-Feugerolles (6.8 km)
- 2 vente de locaux d'activité et entrepôt à La Fouillouse (8.7 km)
- 1 vente de local d'activité et entrepôt à Firminy (9.7 km)
- 4 vente de locaux d'activité et entrepôt à Saint-Chamond (10.6 km)
- 1 vente de local d'activité et entrepôt à Fraisses (11.7 km)
- 2 vente de locaux d'activité et entrepôt à Saint-Just-Saint-Rambert (12.6 km)