• Bureau - 152 m² - 3 pièces
  • Bureau - 152 m² - 3 pièces
  • Bureau - 152 m² - 3 pièces
  • Bureau - 152 m² - 3 pièces
  • Bureau - 152 m² - 3 pièces
  • Bureau - 152 m² - 3 pièces
  • Bureau - 152 m² - 3 pièces
2 230 € HT / mois
152 m²
3 pièces

Description :

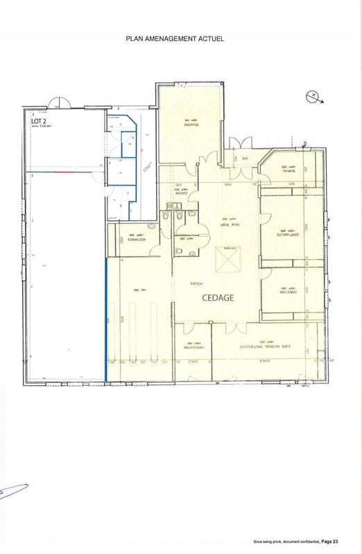
Bureaux, locaux d'activité, à proximité du technopôle et du Zenith hyper accessible depuis l'autoroute A 72.
Surface en RDC de 152 m² aves coin cuisine et sanitaires, chauffage par climatisation réversible, avec 12 places de stationnement privatif et une place PMR. les locaux peuvent être remangés en fonction de votre cahier de vos besoins

Honoraires de 4 200 € HT à la charge du locataire. Provision sur charges 130 € HT/mois, régularisation annuelle. Dépôt de garantie 4 200 €. DPE en cours. Les informations sur les risques auxquels ce bien est exposé sont disponibles sur le site Géorisques : georisques.gouv.fr.

Votre conseiller Cabinet Mérieux : Conseil en immobilier pro - Vincent Geoffroy.
Documents et photos non contractuels susceptibles d'évolutions au fil de la commercialisation.

Afficher plus de détails

Informations sur ce bien :

L'intérieur :

  • 3 pièces
  • 152 m²

L'extérieur :

  • 12 Parkings

Les équipements :

  • Accès handicapé

Autres :

  • Chauffage :
    Climatisation
  • Étage :
    RDC
Synthèse
Bureau à Saint-Étienne
2 230 € HT / mois
Surface : 152 m²
Transaction :
Location (locaux professionnels)
Référence :
LP572-MMC
Charges :
130 €
Informations complémentaires
Les charges sont inclues dans le loyer affiché
Prévisionnelles mensuelles avec régularisation annuelle
Montant de la caution :
4 200 €
Honoraires :
4 200 €
Informations complémentaires
Honoraires hors taxes
Disponibilité :
01/01/2024
Date de publication :
Il y a plus de 7 jours
Bureau - 152 m² - 3 pièces
Agent
Cabinet Mérieux
Cabinet Mérieux
Vincent Geoffroy
Appeler
Écrire
Mettre en avant cette annonce
Signaler une erreur

Localisation :

L'adresse exacte n'est pas renseignée. Le bien se situe dans cette zone.
Annonces similaires
Annonces immobilières récentes