Terrain - 452 m² à Saint-Amand-les-Eaux
Description :
Venez découvrir uniquement chez Jimmy DE SOUSA - Fox HABITAT
OPPORTUNITÉ RARE ! UNE POSSIBILITÉ DE CONSTRUIRE LA MAISON DE VOS RÊVES SUR UN TRÈS BEL ENDROIT CALME ET TRÈS PRISÉ !
Vente d'un terrain avec une superficie total de 452m² dont 100 m² constructible de plain pied, situé à Thun-Saint-Amand, dans un secteur très apprécié.
Ce terrain est idéalement situé proches des commerces et des écoles ; vous serez également situé proches des grands axes routiers comme l'autoroute.
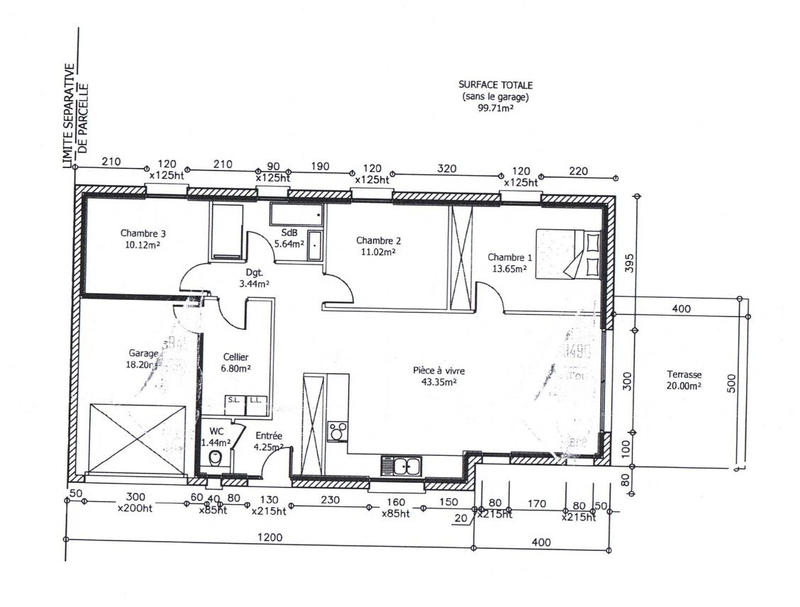
Vente terrain incluant permis de construire accepté avec plans et dessins pour projet de construction d'une maison individuelle de plain pied de 100m2, construite sur un vide sanitaire. ( plus de détails sur demande)
Composition : entrée, pièce de vie ouverte (cuisine, salon, salle à manger), 3 chambres, salle de bain, cellier, WC, garage + place de parking.
Détail du prix de vente :
90.000 € TTC net vendeur (TVA 20%)
99.000 € TTC FAI
Pour en savoir d'avantage, contactez-moi :
? Contactez Jimmy DE SOUSA : 06.31.89.76.90 (par sms également)
pour une visite rapide !
Mandat : 933
Honoraires inclus de 10% TTC à la charge de l'acquéreur. Prix hors honoraires 90 000 €. Les informations sur les risques auxquels ce bien est exposé sont disponibles sur le site Géorisques : georisques.gouv.fr.
Votre conseiller Fox Habitat Cambrai : Expert Immobilier indépendant - Jimmy De Sousa
Carte T 59032018000038304
RCP 60732884.
Pour plus de biens, visitez notre site internet www.foxhabitat.fr !
Informations sur ce bien :
L'intérieur :
-
452 m²
L'extérieur :
-
Parking
Terrain :
-
Viabilisé :Non
Localisation :
Ventes de terrains à proximité
- 2 ventes de terrains à Millonfosse (3 km)
- 1 vente de terrain à Bruille-Saint-Amand (5.7 km)
- 1 vente de terrain à Mortagne-du-Nord (5.9 km)
- 1 vente de terrain à Flines-lès-Mortagne (6.6 km)
- 3 ventes de terrains à Hergnies (7.3 km)
- 1 vente de terrain à Saméon (7.4 km)
- 5 ventes de terrains à Wandignies-Hamage (9.7 km)
- 1 vente de terrain à Vieux-Condé (10 km)
- 1 vente de terrain à Fresnes-sur-Escaut (10.8 km)