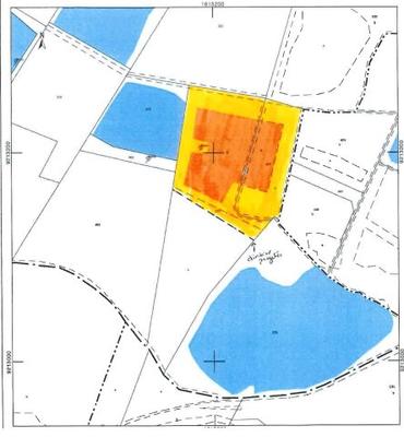
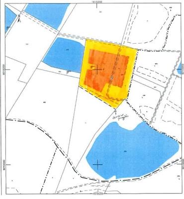
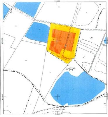
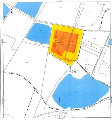
Terrain - 12 100 m² à Saigneville
favoris
159 000 €
Description :
ALLIANCES IMMOBILIERES vous propose cette très belle hutte de chasse située entre ST VALERY et ABBEVILLE
Sur une surface totale de 1ha 21, mare de 7000 m² environ avec parcs à canards, postes de tir au vol
hutte comprenant cuisine, salle de tir, débarras, garage, le tout en très bon état
electricité par panneaux solaires
mare alimentée en eau par puits artésiens.
Informations LOI ALUR :
Honoraires : 6 % TTC charge acquéreur.
Prix hors honoraires : 150 000 ¤. (gedeon_90928_30285365)
Afficher plus de détails
Informations sur ce bien :
L'intérieur :
-
12 100 m²
L'extérieur :
-
Parking
Autres :
-
État :Refait à neuf
Terrain :
-
Viabilisé :Non
Synthèse
Terrain à Saigneville
159 000 €
Surface :
12 100 m²
Prix au m² :
13 €
Transaction :
Achat
Référence :
AG609-ED446
Date de publication :
Il y a plus de 7 jours
Contacter l'annonceur
Agent
ALLIANCES IMMOBILIERES
Mettre en avant cette annonce
Signaler une erreur
Localisation :
L'adresse exacte n'est pas renseignée. Le bien se situe dans cette zone.
Ventes de terrains à proximité
- 3 ventes de terrains à Mons-Boubert (3.8 km)
- 2 ventes de terrains à Miannay (4.3 km)
- 4 ventes de terrains à Cambron (4.9 km)
- 8 ventes de terrains à Franleu (6.9 km)
- 6 ventes de terrains à Saint-Valery-sur-Somme (8.3 km)
- 13 ventes de terrains à Abbeville (9.4 km)
- 2 ventes de terrains au Crotoy (10.7 km)
- 3 ventes de terrains à Drucat (11.2 km)
- 3 ventes de terrains à Mareuil-Caubert (11.2 km)