• Maison - 115 m²
  • Maison - 115 m²
  • Maison - 115 m²
339 500 €
115 m²
3 chambres

Description :

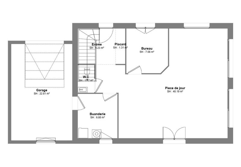
DESIGN BATIMENT vous propose sur la commune de Ruy Montceau, à seulement 10min du centre de Bourgoin Jallieu et de toutes ces commodités pour réaliser votre projet de construction d'une maison individuelle de 115m2 habitables, composé:
- D'une pièce de vie, spacieuse et lumineuse ouverte sur la cuisine
- Un bureau au R.D.C
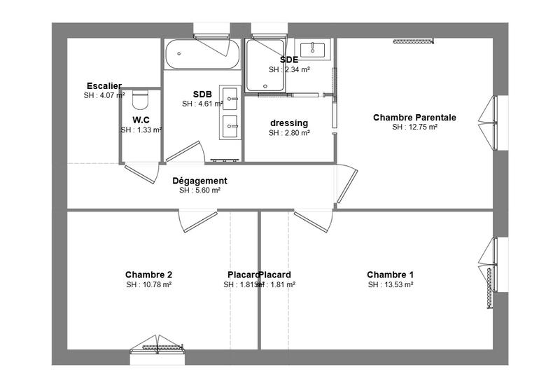
- 3 chambres à l'étage (dont une suite parentale équipée de sa propre S.D.B)
- Un garage de 22m2.
Le tout sur un terrain d'environ 594m2 bien exposé et idéalement situé dans une impasse dans une zone calme,

Maison aux dernières normes (RE2020), avec tout le confort d'une maison moderne.
Réalisation de plans sur mesure adaptés à vos besoin et votre budget.

Inclus dans le prix: le terrain, les V.R.D ainsi que toutes les garanties prévu dans le CCMI (assurance dommage ouvrage, garantie de parfaite achèvement et bon fonctionnement et la garantie de livraison)

Design Bâtiment, votre constructeur familial CCMI depuis 30 ans implanté à Bourgoin Jallieu, spécialiste des projets de construction sur mesure et personnalisés.
Terrain vu avec notre partenaire foncier, sous réserve de disponibilité.
(Photo non contractuel)
Les informations sur les risques auxquels ce bien est exposé sont disponibles sur le site Géorisques http://www.georisques.gouv.fr

Afficher plus de détails

Informations sur ce bien :

L'intérieur :

  • 115 m²
    Informations complémentaires
    Surface habitable : 115 m²
  • 3 Chambres
Synthèse
Maison à Ruy
339 500 €
Surface : 115 m²
Prix au m² : 2 952 €
Transaction :
Neuf
Référence :
CW02
Date de publication :
Il y a plus de 7 jours
Maison - 115 m²
Agent
DESIGN BATIMENT MAX'IMMO
DESIGN BATIMENT MAX'IMMO
Cédric WOJTOWICZ
Appeler
Écrire
Mettre en avant cette annonce
Signaler une erreur

Localisation :

L'adresse exacte n'est pas renseignée. Le bien se situe dans cette zone.
Annonces similaires
Annonces immobilières récentes