• Duplex - 46 m² - 2 pièces
  • Duplex - 46 m² - 2 pièces
  • Duplex - 46 m² - 2 pièces
  • Duplex - 46 m² - 2 pièces
  • Duplex - 46 m² - 2 pièces
  • Duplex - 46 m² - 2 pièces
  • Duplex - 46 m² - 2 pièces
165 000 €
46 m²
2 pièces
1 chambre

Description :

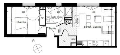
Situé dans une résidence calme et sécurisée du quartier Pasteur à Rouen, ce charmant appartement T2 en duplex de 52 m² au sol offre un cadre de vie agréable, à proximité immédiate des transports, des universités et des commerces. Un emplacement idéal pour un étudiant, un jeune actif ou un investisseur.

Au rez-de-chaussée, vous trouverez :

une cuisine aménagée et équipée, totalement refaite à neuf,

un séjour lumineux d'environ 23 m²,

une salle de douche moderne, également refaite à neuf,

des WC séparés.

À l'étage, la chambre en mezzanine propose un espace nuit cosy et pratique.

Très bien entretenu, le logement dispose d'un chauffage individuel au gaz (chaudière récente).
La taxe foncière s'élève à 1200 €.

Atouts du bien

Possibilité de céder un parking souterrain (85 €/mois)

Porte d'entrée sécurisée

Cuisine et salle de bain refaites à neuf

Cave d'environ 7 m²

Proximité des transports et des universités

Appartement lumineux, fonctionnel et en excellent état

Très bonne localisation dans le quartier Pasteur, proche des commerces

Cet appartement allie charme, modernité et emplacement privilégié.
N'hésitez pas à nous contacter pour plus d'informations ou pour organiser une visite.
Honoraires d'agence à la charge du vendeur.
Consultez nos tarifs sur le site de Immobilier Email.
Annonce publiée le 08/12/2025 par Fayrouz Aziat 0783220063, RSAC 883686669 - agent commercial indépendant de IMMOBILIER EMAIL SAS - EI, Tribunal de Commerce de Rouen

Afficher plus de détails

Informations sur ce bien :

L'intérieur :

  • 2 pièces
  • 46 m²
    Informations complémentaires
    Surface habitable : 46 m²
  • 1 Chambre
  • Cuisine équipée
    Informations complémentaires
    Équipée
  • 1 Salle de bain
  • 1 Salle d'eau
  • 1 Toilette
  • Cave

Autres :

  • Chauffage :
    Gaz
  • Année de construction :
    1947
  • Étage :
    1er étage

Copropriété :

  • Copropriété :
    Oui
  • Nombre de lots :
    18
  • Charges annuelles :
    1 260 €
Synthèse
Duplex à Rouen
165 000 €
Surface : 46 m²
Prix au m² : 3 587 €
Transaction :
Achat
Référence :
fr039887
Date de publication :
Il y a plus de 7 jours
Duplex - 46 m² - 2 pièces
Performance énergétique
A
B
C
D
E
F
G
Gaz à effet de serre
A
B
C
D
E
F
G
Agent
IMMOBILIER.EMAIL
Fayrouz Aziat
Appeler
Écrire
Mettre en avant cette annonce
Signaler une erreur

Localisation :

L'adresse exacte n'est pas renseignée. Le bien se situe dans cette zone.

Performance énergétique :

Logement économe
A
B
C
148
kWh/m²/an
30
kg CO₂/m²/an
D
E
F
G
Logement énergivore
Faible émission de CO₂
A
B
C
30
kg CO₂/m²/an
D
E
F
G
Forte émission de CO₂
Date du diagnostic : 03 septembre 2025
Annonces similaires
Annonces immobilières récentes