• Appartement - 127 m² - 5 pièces
  • Appartement - 127 m² - 5 pièces
  • Appartement - 127 m² - 5 pièces
  • Appartement - 127 m² - 5 pièces
  • Appartement - 127 m² - 5 pièces
629 000 €
127 m²
5 pièces
2 chambres

Description :

Bel appartement T5 exposé sud, au 4e étage d'un ensemble de 15 logements implanté près de la place du Boulingrin et du fameux quartier Jouvenet, à 10 minutes de la gare SNCF de Rouen droite par le TÉOR 4 dont l'arrêt est au pied de l'immeuble.

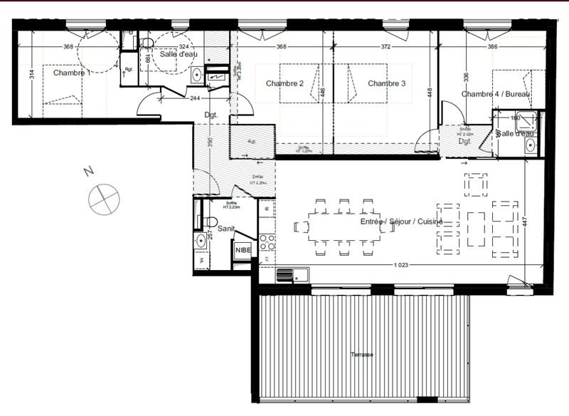
Il se compose d'un ensemble séjour/cuisine de 48.98 m2 donnant sur une large terrasse de 27.40 m2, d'une entrée/dégagement distribuant 2 chambres dont une avec penderie, une salle d'eau avec wc, un grand rangement et un wc séparé, d'un second dégagement distribuant les 2 autres chambres et une salle d'eau.

Deux places de parking en sous-sol sécurisé complètent ce bien.

D'autres lots sont disponibles.
Renseignements sur simple appel téléphonique, ainsi que pour effectuer une réservation qui vous donnera l'assurance de devenir propriétaire le jour de la réception, envisagée dans le courant du 2e trimestre 2026.

La construction sera conforme à la Réglementation Acoustique, à la Réglementation
Environnementale (RE 2020) et à la Réglementation handicapés.

Le chauffage sera produit au moyen d'une pompe à Chaleur type NIBE avec radiateur à eau
chaude dans toutes les pièces, à l'exception du WC et cellier.
Une régulation sera assurée pour chaque pièce par le biais d'une programmation commandée
depuis l'appareillage de régulation électronique ou système équivalent.

Les informations sur les risques auxquels ce bien est exposé sont disponibles sur le site Géorisques : www. georisques. gouv. fr.

Réseau Immobilier CAPIFRANCE - Votre agent commercial (RSAC N°320 483 217 - Greffe de ROUEN) Thierry DUGAT Entrepreneur Individuel 06 60 60 40 10 - Réf.304121

Afficher plus de détails

Informations sur ce bien :

L'intérieur :

  • 5 pièces
  • 127 m²
    Informations complémentaires
    Surface habitable : 127 m²
  • 2 Chambres

Autres :

  • Étage :
    4ème étage
Synthèse
Appartement à Rouen
629 000 €
Surface : 127 m²
Prix au m² : 4 953 €
Transaction :
Achat
Référence :
340934685320
Date de publication :
Il y a plus de 7 jours
Appartement - 127 m² - 5 pièces
Agent
CAPIFRANCE
CAPIFRANCE
Monsieur Thierry DUGAT
Appeler
Écrire
Mettre en avant cette annonce
Signaler une erreur

Localisation :

L'adresse exacte n'est pas renseignée. Le bien se situe dans cette zone.

Performance énergétique :

Bien non soumis au Diagnostic de Performance Énergétique (DPE)

Annonces similaires
Annonces immobilières récentes