Maison - 107 m² - 5 pièces à Roche

favoris
  • Maison - 107 m² - 5 pièces
  • Maison - 107 m² - 5 pièces
  • Maison - 107 m² - 5 pièces
  • Maison - 107 m² - 5 pièces
315 000 €
107 m²
5 pièces
4 chambres

Description :

A moins de 10 minutes de l'entrée d'autoroute de la Verpillière, au centre de la commune de Roche, et tout proche des écoles et des petits commerces.

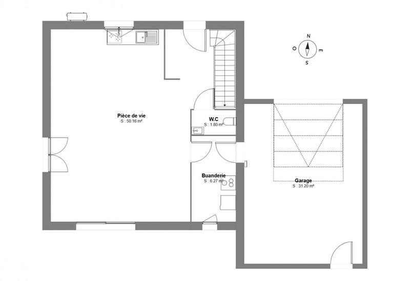
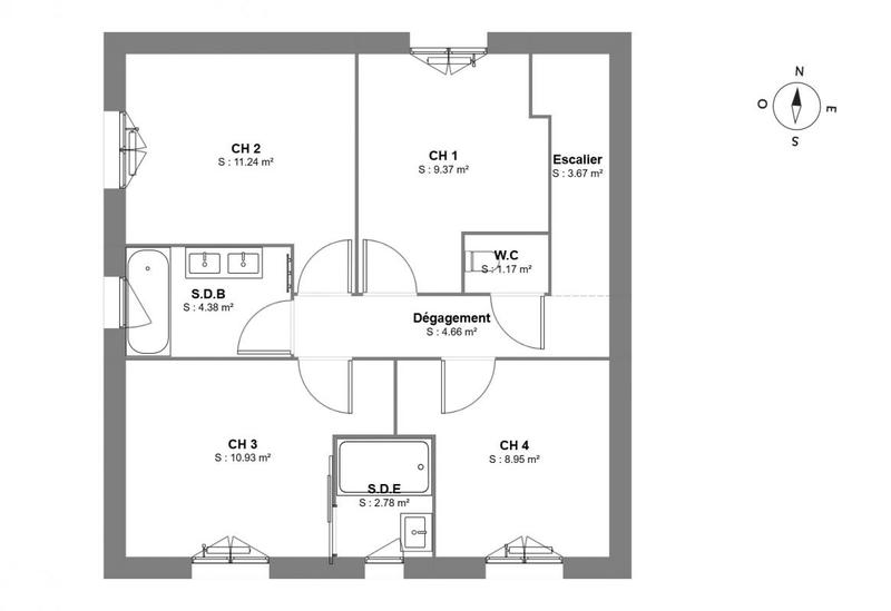
Design Bâtiment, vous propose ce projet de construction d'une maison individuelle de 107m2 habitable, proposant 4 chambres + un garage de 31 m2, sur un magnifique terrain de 313m2 viabilisé.

Prestation inclues:
- Chauffage au sol et production d'eau chaude par pompe a chaleur AIR/EAU
- Volets roulants motorisés
- Porte de garage motorisée
- Débord de toit P.V.C
- RE 2020

Maison entièrement personnalisable selon vos souhaits : carrelages, faïences, menuiseries, plans, système de chauffage.

Le prix comprend : le terrain viabilisé, la maison ( sans les peintures ) et la dommage ouvrage ainsi que les garanties inclues dans le CCMI

. Terrain sélectionné et vu pour vous auprès de notre partenaire foncier, sous réserve de disponibilité.

Design Bâtiment, votre constructeur familial CCMI depuis 30 ans implanté à Bourgoin Jallieu, spécialiste des projets de construction sur mesure et personnalisés. Nous étudions ensemble votre projet de construction et le modélons selon vos demandes.

Les informations sur les risques auxquels ce bien est exposé sont disponibles sur le site Géorisques http://www.georisques.gouv.fr

Photo non contractuelle

Afficher plus de détails

Informations sur ce bien :

L'intérieur :

  • 5 pièces
  • 107 m²
    Informations complémentaires
    Surface habitable : 107 m²
  • 4 Chambres
Synthèse
Maison à Roche
315 000 €
Surface : 107 m²
Prix au m² : 2 944 €
Transaction :
Neuf
Référence :
Roche_C.W_02
Date de publication :
Il y a plus de 7 jours
Maison - 107 m² - 5 pièces
Agent
DESIGN BATIMENT MAX'IMMO
DESIGN BATIMENT MAX'IMMO
Cédric WOJTOWICZ
Appeler
Écrire
Mettre en avant cette annonce
Signaler une erreur

Localisation :

L'adresse exacte n'est pas renseignée. Le bien se situe dans cette zone.
Annonces similaires
Annonces immobilières récentes