• Loft - 78 m² - 4 pièces
  • Loft - 78 m² - 4 pièces
  • Loft - 78 m² - 4 pièces
  • Loft - 78 m² - 4 pièces
  • Loft - 78 m² - 4 pièces
  • Loft - 78 m² - 4 pièces
  • Loft - 78 m² - 4 pièces
  • Loft - 78 m² - 4 pièces
215 000 €
78 m²
4 pièces
3 chambres

Description :

Loft duplex entièrement rénové ? Hyper centre de Roanne

Situé en plein coeur du centre-ville de Roanne, ce futur loft en duplex entièrement rénové séduira les amateurs de volumes, de luminosité et d'esprit contemporain. Vous profiterez d'un emplacement privilégié en hyper centre, à proximité immédiate des commerces, restaurants, transports et commodités.

Actuellement à l'état brut, ce bien fera l'objet d'une rénovation complète avec des prestations modernes et de qualité, afin d'offrir un cadre de vie unique mêlant charme industriel et confort actuel.

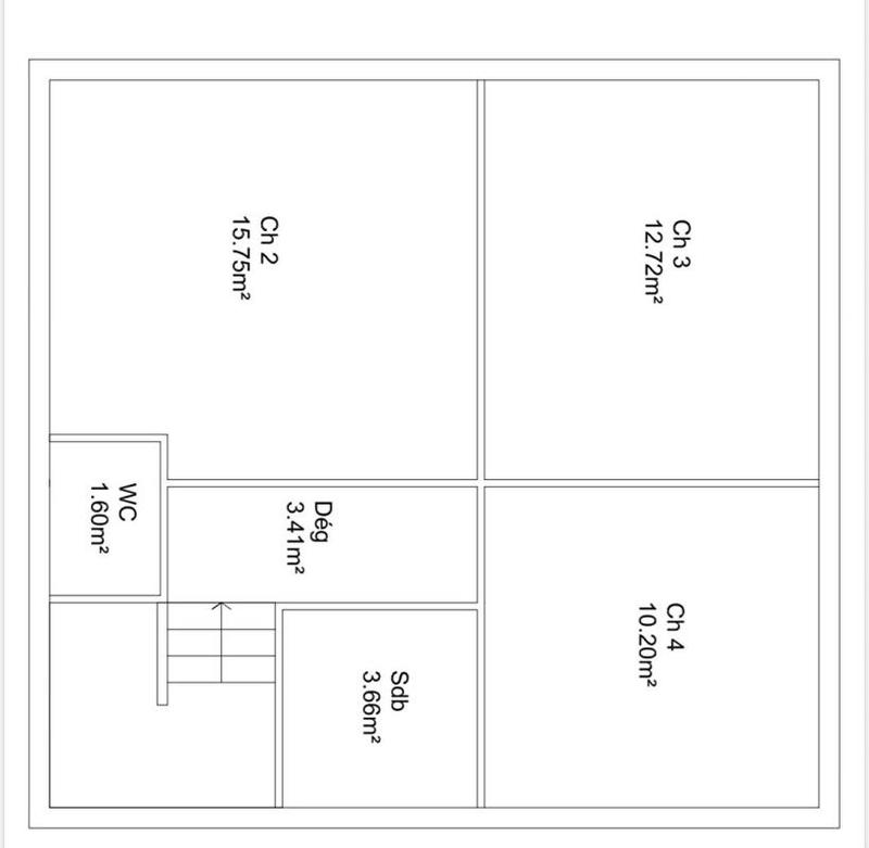
Le projet prévoit une surface de 78,80 m² habitables répartie sur deux niveaux :

Au rez-de-chaussée :
- une grande pièce de vie ouverte comprenant cuisine, salon et salle à manger
- un WC indépendant
- une buanderie

A l'étage :
- trois chambres
- une salle d'eau avec WC

Un sous-sol en dépendance complète ce bien et pourra servir d'espace de stockage ou d'aménagement complémentaire.

Le loft bénéficiera à terme de prestations contemporaines, d'une optimisation des espaces et d'une performance énergétique améliorée.

Prix de vente : 215 000 euros FAI
Dont 10 000 euros d'honoraires à la charge de l'acquéreur
Prix hors honoraires : 205 000 euros

DPE projeté après rénovation : classe B

Surface habitable : 78,80 m²

Visuels 3D non contractuels ? projections d'aménagement après rénovation.
Le bien est actuellement à l'état brut et sera vendu entièrement rénové après réalisation des travaux.

Commercialisation anticipée : le propriétaire n'ayant pas encore signé le compromis relatif au bien, la vente demeure sous réserve de la finalisation de cette acquisition et du lancement des travaux.

Les informations sur les risques auxquels ce bien est exposé sont disponibles sur le site : www.georisques.gouv.fr

Pour plus d'informations sur ce bien, merci de contacter Copet Lesly au 06 42 92 41 03.
(4.88 % honoraires TTC à la charge de l'acquéreur.)

Afficher plus de détails

Informations sur ce bien :

L'intérieur :

  • 4 pièces
  • 78 m²
    Informations complémentaires
    Surface habitable : 79 m²
  • 3 Chambres
  • Cuisine américaine
    Informations complémentaires
    Américaine
  • 1 Salle d'eau
  • 2 Toilettes
  • Cave

L'extérieur :

  • Parking extérieur
    Informations complémentaires
    Extérieur

Autres :

  • Chauffage :
    Individuel, Radiateur, Pompe à chaleur
  • État :
    Excellent, Intérieur : Somptueux
  • Étage :
    RDC

Copropriété :

  • Taxe foncière :
    1 000 €
Synthèse
Loft à Roanne
215 000 €
Surface : 78 m²
Prix au m² : 2 756 €
Transaction :
Achat
Référence :
708_roa
Date de publication :
Aujourd'hui à 09:03
Loft - 78 m² - 4 pièces
Agent
STEPHANE PLAZA ROANNE
STEPHANE PLAZA ROANNE
COPET Lesly
Appeler
Écrire
Mettre en avant cette annonce
Signaler une erreur

Localisation :

L'adresse exacte n'est pas renseignée. Le bien se situe dans cette zone.

Performance énergétique :

Bien non soumis au Diagnostic de Performance Énergétique (DPE)

Annonces similaires
Annonces immobilières récentes