• Appartement - 60 m² - 3 pièces
  • Appartement - 60 m² - 3 pièces
  • Appartement - 60 m² - 3 pièces
  • Appartement - 60 m² - 3 pièces
  • Appartement - 60 m² - 3 pièces
191 000 €
60 m²
3 pièces

Description :

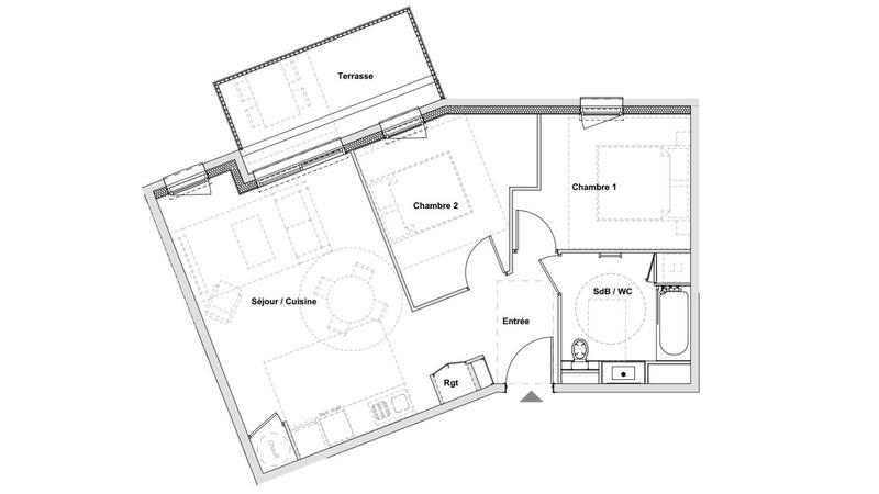
Iad France - Jean Roussilhe (07 82 55 71 64) vous propose : L’appartement situé au premier étage offre une surface de 59,37 m² environ et comprend trois pièces ainsi qu’un balcon de 8,85 m² environ orienté nord-ouest. Il dispose d’une cuisine Coeur de Vie et de prestations modernes qui optimisent le confort et la fonctionnalité de l’espace de vie. La résidence Les Rives de l’Ambène se distingue par ses bâtiments intermédiaires passifs en bardage bois, ses menuiseries à triple vitrage et son avancée de toiture à l’ouest pour la protection solaire. La conception mixte bois / paille et béton répond aux ambitions bioclimatiques et à la réglementation RE2020, tandis que des locaux vélos sont prévus pour faciliter les déplacements doux. Le projet vise la labellisation écoquartier et propose une architecture respectueuse de l’environnement et de l’efficacité énergétique. La résidence bénéficie d’un emplacement idéal au nord de Clermont-Ferrand, à seulement 20 minutes en voiture ou 10 minutes en train, avec un accès facile à la gare de Riom – Châtel-Guyon via un cheminement piéton sécurisé. Elle se trouve également à cinq minutes à vélo du centre-bourg, proche des commerces, services et infrastructures de la ville, avec une connexion rapide à l’autoroute. À proximité, un nouveau parc de trois hectares offre un cadre naturel agréable. Le programme compte 44 lots, dont 38 appartements du studio au cinq pièces et 6 maisons, avec 16 appartements intermédiaires bénéficiant de jardins privatifs, combinant ainsi confort de vie, accessibilité et cadre naturel privilégié. Cette configuration permet un habitat diversifié avec des espaces extérieurs privatifs et des prestations adaptées à la vie quotidienne tout en respectant l’environnement. Honoraires d’agence à la charge du vendeur. Bien non soumis au DPE. Les informations sur les risques auxquels ce bien est exposé sont disponibles sur le site Géorisques : www.georisques.gouv.fr. La présente annonce immobilière a été rédigée sous la responsabilité éditoriale de M. Jean Roussilhe EI (ID 89508), mandataire indépendant en immobilier (sans détention de fonds), agent commercial de la SAS I@D France immatriculé au RSAC de PARIS sous le numéro 988255675, titulaire de la carte de démarchage immobilier pour le compte de la société I@D France SAS. Retrouvez tous nos biens sur notre site internet. www.iadfrance.fr.

Afficher plus de détails

Informations sur ce bien :

L'intérieur :

  • 3 pièces
  • 60 m²
    Informations complémentaires
    Surface habitable : 60 m²

Autres :

  • Mitoyenneté :
    Non
  • Étage :
    1er étage
Synthèse
Appartement à Riom
191 000 €
Surface : 60 m²
Prix au m² : 3 183 €
Transaction :
Achat
Référence :
1950793
Date de publication :
Aujourd'hui à 07:51
Appartement - 60 m² - 3 pièces
Agent
iad france
iad france
Jean Roussilhe
Appeler
Écrire
Mettre en avant cette annonce
Signaler une erreur

Localisation :

L'adresse exacte n'est pas renseignée. Le bien se situe dans cette zone.
Annonces similaires
Annonces immobilières récentes