• Appartement - 67 m² - 3 pièces
  • Appartement - 67 m² - 3 pièces
  • Appartement - 67 m² - 3 pièces
  • Appartement - 67 m² - 3 pièces
  • Appartement - 67 m² - 3 pièces
  • Appartement - 67 m² - 3 pièces
  • Appartement - 67 m² - 3 pièces
  • Appartement - 67 m² - 3 pièces
235 500 €
67 m²
3 pièces
2 chambres

Description :

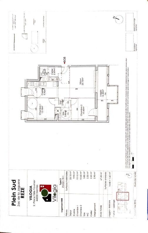
Iad France - Gaelle Derennes vous propose : T3 de 67 m² en excellent état - 1er étage d'un immeuble récent de 2017 - avec grande terrasse, garage et place extérieure Au premier étage d'un appartement récent, au coeur du quartier de la Jaguère à Rezé, découvrez ce superbe T3 de 67 m² avec ascenseur. On entre sur la pièce de vie composée d'un séjour de 23 m² plein sud, avec sa baie vitrée sur grande terrasse de 16 m², et d'une cuisine ouverte de 9,5 m², aménagée et équipée. L’espace nuit se compose de deux chambres de 13 et 10,5 m², ainsi que d’une salle d’eau. L'appartement est très bien entretenu et en excellent état. Aucun travaux à prévoir. Un stationnement sous terrain sécurisé avec borne de recharge électrique + place de stationnement extérieur Charges de copropriété : 96 € / mois. Commerces de proximité (Super U, pharmacie, boulangerie) à 5minutes à pied Bus (ligne 33) au pied de l’immeuble La presente annonce immobiliere vise 2 lots situés dans une copropriété de 44 lots au total et ne faisant l'objet d'aucune procédure en cours citée à l'article L. 721-1 du code de la construction et de l'habitation. Montant moyen mensuel de charges déclaré par le vendeur : 97€ par mois (soit 1164 € annuel). Honoraires d'agence à la charge du vendeur. Information d'affichage énergétique sur ce bien : classe ENERGIE B indice 58 et classe CLIMAT B indice 10. Les informations sur les risques auxquels ce bien est exposé, y compris l'obligation légale de débroussaillement, sont disponibles sur le site Géorisques : http://www.georisques.gouv.fr. La présente annonce immobilière a été rédigée sous la responsabilité éditoriale de Mme Gaelle Derennes mandataire indépendant en immobilier (sans détention de fonds), agent commercial de la SAS I@D France immatriculé au RSAC de Nantes sous le numéro 529789877, titulaire de la carte de démarchage immobilier pour le compte de la société I@D France SAS.

Afficher plus de détails

Informations sur ce bien :

L'intérieur :

  • 3 pièces
  • 67 m²
    Informations complémentaires
    Surface habitable : 67 m²
  • 2 Chambres
  • Séjour

L'extérieur :

  • Terrasse

Les équipements :

  • Ascenseur
  • Digicode

Autres :

  • Chauffage :
    Individuel, Gaz
  • Année de construction :
    2017
  • Mitoyenneté :
    Non
  • Étage :
    1er étage
    Informations complémentaires
    Nombre d'étages de la construction : 4

Copropriété :

  • Copropriété :
    Oui
  • Nombre de lots :
    44
  • Charges annuelles :
    1 164 €
Synthèse
Appartement à Rezé
235 500 €
Surface : 67 m²
Prix au m² : 3 515 €
Transaction :
Achat
Référence :
1966193
Date de publication :
Aujourd'hui à 11:35
Appartement - 67 m² - 3 pièces
Performance énergétique
A
B
C
D
E
F
G
Gaz à effet de serre
A
B
C
D
E
F
G
Agent
iad france
iad france
Gaelle Derennes
Appeler
Écrire
Mettre en avant cette annonce
Signaler une erreur

Localisation :

L'adresse exacte n'est pas renseignée. Le bien se situe dans cette zone.

Performance énergétique :

Logement économe
A
B
58
kWh/m²/an
10
kg CO₂/m²/an
C
D
E
F
G
Logement énergivore
Faible émission de CO₂
A
B
10
kg CO₂/m²/an
C
D
E
F
G
Forte émission de CO₂
Date du diagnostic : 03 décembre 2025
Annonces similaires
Annonces immobilières récentes