• Appartement - 63 m² - 3 pièces
  • Appartement - 63 m² - 3 pièces
  • Appartement - 63 m² - 3 pièces
339 358 €
63 m²
3 pièces
2 chambres

Description :

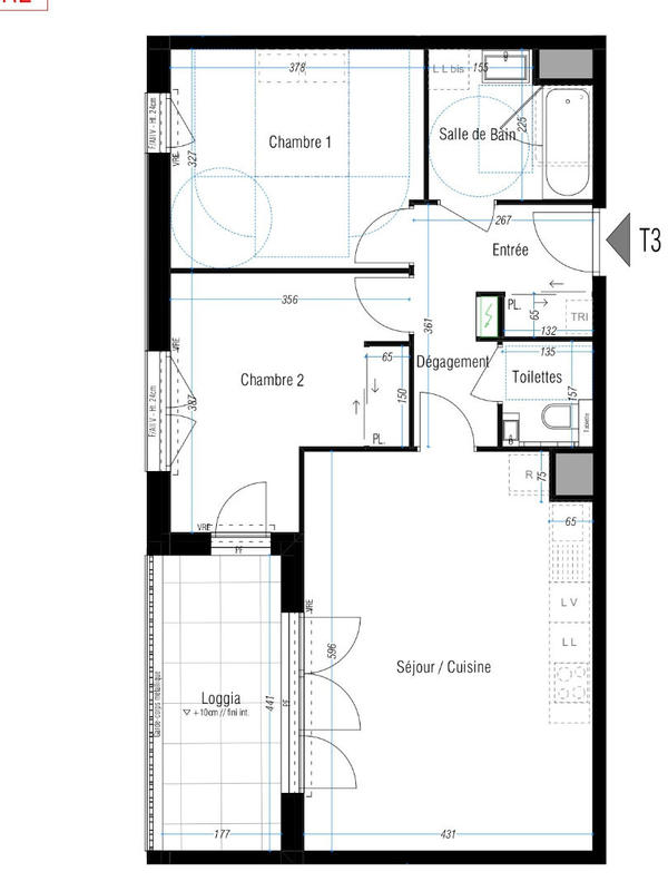
RENNES - Jeanne d'Arc - Appartement 3 pièces 63.13m² Ouest - 3ème étage - ascenseur - loggia 7.83m² - garage . Prix tva à 5.5% - Conditions nous consulter. A deux pas du métro, proche des commerces, écoles et transports en commun, cet appartement de 3 pièces de 63.13m² exposé à l'Ouest bénéficie d'un emplacement permettant de rejoindre rapidement le centre-ville (Sainte-Anne en 10 minutes, Gare de Rennes en 15 minutes). , il se trouve non loin des parcs offrant un cadre idéal pour se détendre. Situé au 3ème étage avec ascenseur, cet appartement lumineux, dispose d'un séjour salon avec cuisine ouverte donnant accès à une loggia de 7.83m². Il comprend deux chambres, salle de bains et wc indépendant. Un garage en sous-sol complète ce bien. Enfin, le chauffage, assuré par le réseau de chaleur urbain, garantit une solution à la fois économique et écologique.. Prix promoteur - Les informations sur les risques auxquels ce bien est exposé sont disponibles sur le site Géorisques : www.georisques.gouv.fr. Photos non contractuelles - Suggestions d'aménagements Copropriété de 43 lots - dont 43 lots habitation. (Pas de procédure en cours). Charges annuelles : 907 euros.

Afficher plus de détails

Informations sur ce bien :

L'intérieur :

  • 3 pièces
  • 63 m²
    Informations complémentaires
    Surface habitable : 63 m²
  • 2 Chambres
  • Cuisine ouverte
    Informations complémentaires
    Ouverte
  • 1 Salle de bain
  • 1 Toilette

L'extérieur :

  • Balcon de 8 m²
  • Garage

Les équipements :

  • Ascenseur
  • Tout à l'égout
  • Fibre optique

Autres :

  • Chauffage :
    Individuel, Radiateur, Urbain
  • Exposition :
    Ouest
  • Étage :
    3ème étage
    Informations complémentaires
    Nombre d'étages de la construction : 7
  • Nombre de niveaux :
    1

Copropriété :

  • Copropriété :
    Oui
  • Nombre de lots :
    43
  • Charges annuelles :
    907 €
  • Procédure :
    Pas de procédure en cours
Synthèse
Appartement à Rennes
339 358 €
Surface : 63 m²
Prix au m² : 5 387 €
Transaction :
Achat
Référence :
60721-A305
Date de publication :
Il y a plus de 7 jours
Appartement - 63 m² - 3 pièces
Agent
Cabinet Moraine Immobilier
Cabinet Moraine Immobilier
Appeler
Écrire
Mettre en avant cette annonce
Signaler une erreur

Localisation :

L'adresse exacte n'est pas renseignée. Le bien se situe dans cette zone.

Performance énergétique :

Bien non soumis au Diagnostic de Performance Énergétique (DPE)

Annonces similaires
Annonces immobilières récentes