• Appartement - 47 m² - 2 pièces
  • Appartement - 47 m² - 2 pièces
  • Appartement - 47 m² - 2 pièces
  • Appartement - 47 m² - 2 pièces
  • Appartement - 47 m² - 2 pièces
  • Appartement - 47 m² - 2 pièces
  • Appartement - 47 m² - 2 pièces
99 900 €
47 m²
2 pièces
1 chambre

Description :

Appartement vendu loué – Investissement locatif sécurisé à Reims

Situé à proximité immédiate du parc Saint John Perse, à seulement 2 minutes des lignes de tramway A et B, cet appartement vendu loué constitue un placement locatif fiable, sans travaux à prévoir.

Proposé par Fabien Chauvin – consultant immobilier effiCity, ce bien se trouve dans un secteur recherché, bénéficiant d'une excellente desserte en transports.

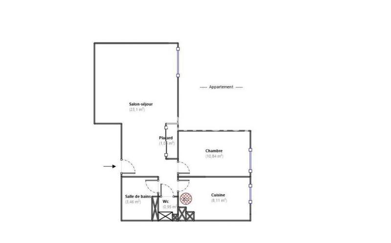
L'appartement se compose :

d'un salon lumineux,

d'une chambre de 11 m²,

d'une cuisine indépendante,

d'une salle de bain,

de WC séparés.

Il est complété par une cave et une place de stationnement extérieure privative, un véritable atout pour la location sur le secteur.

Le bien est parfaitement entretenu, équipé d'un chauffage individuel électrique, avec un DPE classé D, et ne nécessite aucun travaux.

Données locatives :

Appartement actuellement loué

Loyer mensuel : 550 €

Charges : 40 €

Rentabilité immédiate avec locataire soigneux en place

Environnement et accessibilité :

Tram A et B à 300 mètres

Bus lignes 11 et 7 à proximité

Gare Franchet d'Esperey à 5 minutes

Un bien idéal pour un investisseur recherchant un placement rentable, sécurisé et immédiatement productif sur Reims.
Les informations sur les risques auxquels ce bien est exposé sont disponibles sur le site Georisque : georisques. gouv. fr
Fabien Chauvin - EI - est Agent Commercial mandataire en immobilier, immatriculé au Registre Spécial des Agents Commerciaux du Tribunal de Commerce de Reims sous le n°441210283.
Siège social du mandant : effiCity, 48 avenue de Villiers - 75017 PARIS - Société par Actions Simplifiée, société au capital de 132 373,05 euros, immatriculée au RCS Paris 497 617 746 et titulaire de la Carte professionnelle CPI 7501 2015 000 002 025 - CCI Paris IDF - Caisse de Garantie : GALIAN Assurances 89 rue de la Boétie 75008 Paris

Afficher plus de détails

Informations sur ce bien :

L'intérieur :

  • 2 pièces
  • 47 m²
    Informations complémentaires
    Surface habitable : 48 m²
  • 1 Chambre
  • 1 Salle de bain
  • 1 Salle d'eau

Les équipements :

  • Accès handicapé

Autres :

  • Chauffage :
    Individuel, Radiateur, Électrique
  • Année de construction :
    1990
  • Étage :
    2nd étage
    Informations complémentaires
    Nombre d'étages de la construction : 3

Copropriété :

  • Copropriété :
    Oui
  • Nombre de lots :
    96
  • Charges annuelles :
    768 €
  • Taxe foncière :
    243 €
Synthèse
Appartement à Reims
99 900 €
Surface : 47 m²
Prix au m² : 2 126 €
Transaction :
Achat
Référence :
170653
Date de publication :
Il y a plus de 7 jours
Appartement - 47 m² - 2 pièces
Performance énergétique
A
B
C
D
E
F
G
Gaz à effet de serre
A
B
C
D
E
F
G
Agent
RESEAU EFFICITY
RESEAU EFFICITY
M. Fabien Chauvin
Appeler
Écrire
Mettre en avant cette annonce
Signaler une erreur

Localisation :

Performance énergétique :

Logement économe
A
B
C
D
200
kWh/m²/an
7
kg CO₂/m²/an
E
F
G
Logement énergivore
Faible émission de CO₂
A
B
7
kg CO₂/m²/an
C
D
E
F
G
Forte émission de CO₂
Date du diagnostic : 04 mars 2025
Annonces similaires
Annonces immobilières récentes