• Bureau - 118 m²
  • Bureau - 118 m²
  • Bureau - 118 m²
  • Bureau - 118 m²
  • Bureau - 118 m²
  • Bureau - 118 m²
  • Bureau - 118 m²
194 879 € HT
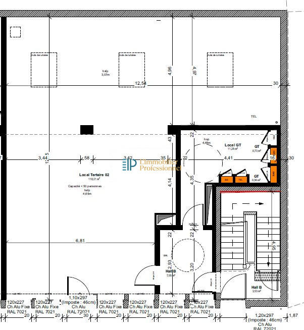
118 m²

Description :

A VENDRE - BUREAUX - 118 M2 - QUIMPER CENTRE

l'Immobilier Professionnel vous propose à la vente, en hyper centre de Quimper, un plateau de bureaux de 118 m2, livré brut de béton et fluides en attente.

- Bâtiment en pierre
- Visibilité importante

Cave n° 17

Prix de vente 194879 € HT

Honoraires à la charge du vendeur et de l'acquéreur. Honoraires inclus de 4.4% HT à la charge de l'acquéreur. Prix hors honoraires 186 666 € HT. Dans une copropriété de 10 lots. Aucune procédure n'est en cours. Non soumis au DPE. Les informations sur les risques auxquels ce bien est exposé sont disponibles sur le site Géorisques : georisques.gouv.fr. .
Les informations sur les risques naturels, miniers, ou technologiques, auxquels ces biens sont exposés, sont disponibles sur le site www.georisques.gouv.fr

Afficher plus de détails

Informations sur ce bien :

L'intérieur :

  • 118 m²

L'extérieur :

  • Parking

Autres :

  • Exposition :
    Est
  • Étage :
    RDC

Copropriété :

  • Copropriété :
    Oui
  • Nombre de lots :
    10
Synthèse
Bureau à Quimper
194 879 € HT
Surface : 118 m²
Prix au m² : 1 652 €
Transaction :
Achat (professionnels)
Référence :
VP2266-IMMOPROBZH
Date de publication :
Il y a plus de 7 jours
Bureau - 118 m²
Agent
L'Immobilier Professionnel
L'Immobilier Professionnel
Vincent BATTAIS
Appeler
Écrire
Mettre en avant cette annonce
Signaler une erreur

Localisation :

Performance énergétique :

Bien non soumis au Diagnostic de Performance Énergétique (DPE)

Annonces similaires
Annonces immobilières récentes