• Local d'activités - 159 m²
  • Local d'activités - 159 m²
  • Local d'activités - 159 m²
  • Local d'activités - 159 m²
  • Local d'activités - 159 m²
1 258 € HT / mois
159 m²

Description :

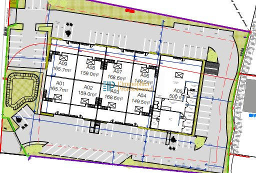
A LOUER - LOCAL D'ACTIVITÉ - 159 M2 - QUIMPER

L'Immobilier Professionnel vous propose à la location, dans une zone artisanale, commerciale et industrielle de Quimper, dans un ensemble neuf livré en 2022, une cellule de 159 m2 environ.

L'ensemble est livré brut de béton, fluides en attentes, vitrines posées, dalle sol quartz 2T/m².
Belle hauteur sous faitage de 7,8 m et porte sectionnelle de 3 m.

Possibilité de louer plusieurs cellules (Nous consulter)

Loyer annuel de 95 € / M2 / HT
Nos honoraires HT : 30 % du loyer annuel HT et hors charges

Honoraires de 4 530 € HT à la charge du locataire. Dépôt de garantie 1 086 €. DPE en cours. Les informations sur les risques auxquels ce bien est exposé sont disponibles sur le site Géorisques : georisques.gouv.fr. .
Les informations sur les risques naturels, miniers, ou technologiques, auxquels ces biens sont exposés, sont disponibles sur le site www.georisques.gouv.fr

Afficher plus de détails

Informations sur ce bien :

L'intérieur :

  • 159 m²

L'extérieur :

  • Parking

Les équipements :

  • Accès handicapé

Autres :

  • Année de construction :
    2022
  • Étage :
    RDC
Synthèse
Local d'activités à Quimper
1 258 € HT / mois
Surface : 159 m²
Transaction :
Location (locaux professionnels)
Référence :
LP1595-IMMOPROBZH
Montant de la caution :
1 086 €
Honoraires :
4 530 €
Informations complémentaires
Honoraires hors taxes
Date de publication :
Il y a plus de 7 jours
Local d'activités - 159 m²
Agent
L'Immobilier Professionnel
L'Immobilier Professionnel
Vincent BATTAIS
Appeler
Écrire
Mettre en avant cette annonce
Signaler une erreur

Localisation :

Annonces similaires
Annonces immobilières récentes