• Appartement - 67 m² - 3 pièces
  • Appartement - 67 m² - 3 pièces
  • Appartement - 67 m² - 3 pièces
  • Appartement - 67 m² - 3 pièces
  • Appartement - 67 m² - 3 pièces
133 800 €
67 m²
3 pièces
2 chambres

Description :

Appartement spécial investisseur.

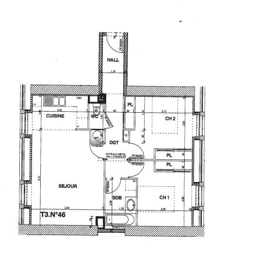
LA FRANCAISE REAL ESTATE MANAGERS VEND A QUIMPER (29000), un appartement T3 de 67.49m² au 3éme étage avec une cave et une place de parking. Ref.Lot 22. Lot n°22.

Situé à Quimper dans le parc de KERFEUTEN.

Venez découvrir cet appartement qui se compose d'une cuisine ouverte, d'une salle de bains avec baignoire, d'un WC indépendant, de 2 chambres avec rangements.

Atouts principaux :
- Une place de parking
- Une cave
- Rangements

DPE : E (262KWh/m².an) – GES : C (14kgCO2/m².an).
Copropriété de 52 lots. Charges de copropriété estimées à 680€/an.

Loyer estimé :
Rentabilité brute estimée : 4,81 %
Loyer mensuel : 536,28 € / mois

Un locataire est déjà en place depuis 2015.

Prix de vente : 133 800€ - Honoraires à la charge du vendeur – Aucun frais d'agence

Contactez-nous pour le détail du bail et la rentabilité locative.

Les informations sur les risques auxquels ce bien est exposé sont disponibles sur le site Géorisques. www.georisques.gouv.fr

Afficher plus de détails

Informations sur ce bien :

L'intérieur :

  • 3 pièces
  • 67 m²
    Informations complémentaires
    Surface habitable : 67 m²
  • 2 Chambres
  • 1 Salle de bain
  • 1 Toilette
  • Cave

Autres :

  • Chauffage :
    Individuel, Électrique
  • Étage :
    3ème étage

Copropriété :

  • Copropriété :
    Oui
  • Nombre de lots :
    52
Synthèse
Appartement à Quimper
133 800 €
Surface : 67 m²
Prix au m² : 1 997 €
Transaction :
Achat
Référence :
29-25-002470_
Mandat :
Exclusif
Date de publication :
Il y a plus de 7 jours
Appartement - 67 m² - 3 pièces
Performance énergétique
A
B
C
D
E
F
G
Gaz à effet de serre
A
B
C
D
E
F
G
Agent
QUADRAL TRANSACTIONS
QUADRAL TRANSACTIONS
Margot CRUAUD
Appeler
Écrire
Mettre en avant cette annonce
Signaler une erreur

Localisation :

Performance énergétique :

Logement économe
A
B
C
D
E
262
kWh/m²/an
14
kg CO₂/m²/an
F
G
Logement énergivore
Faible émission de CO₂
A
B
C
14
kg CO₂/m²/an
D
E
F
G
Forte émission de CO₂
Annonces similaires
Annonces immobilières récentes