• Appartement - 89 m² - 5 pièces
  • Appartement - 89 m² - 5 pièces
  • Appartement - 89 m² - 5 pièces
639 900 €
89 m²
5 pièces
4 chambres

Description :

Une adresse d'exception au cœur de Pornichet
Découvrez une résidence de grand standing, intimiste et contemporaine, à deux pas des plages et du front de mer.
Nichée dans un écrin de verdure, elle se compose de 46 appartements et 4 maisons prêtes à vivre, du studio au 4 pièces.
Des espaces lumineux et ouverts sur l'extérieur : grandes baies vitrées, terrasses en attique, balcons généreux ou jardins privatifs.
Une architecture élégante et contemporaine mêlant bois, pierre et enduits colorés, parfaitement intégrée dans son environnement pornichétin.
Prestations haut de gamme et certification RE2020 pour un confort durable et une haute qualité environnementale.
À proximité immédiate du centre-ville de Pornichet, cette adresse unique est idéale pour habiter à l'année, profiter d'une résidence secondaire ou investir en bord de mer.
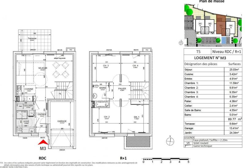
- 3 pièces de 60 m² à 82 m² à partir de 424 900 €
- 4 pièces de 92 m² à partir de 629 900 €
- 3 Maisons de 90 m² à partir de 639 900 €
Livraison 4 Trimestre 2026
• Simplifier votre achat en immobilier neuf
• Un service GRATUIT
• Un accompagnement de A à Z
• Pas de Frais d'agence
• Prix promoteur garantis
Facebook Patrick Orpi
Référence agence : 1787

Afficher plus de détails

Informations sur ce bien :

L'intérieur :

  • 5 pièces
  • 89 m²
    Informations complémentaires
    Surface habitable : 90 m²
  • 4 Chambres
  • 1 Salle de bain
  • 1 Salle d'eau
  • 2 Toilettes

L'extérieur :

  • Jardin
  • Terrasse
  • Parking couvert
    Informations complémentaires
    Couvert

Les équipements :

  • Tout à l'égout
  • Accès handicapé
  • Double vitrage

Autres :

  • État :
    neuf

Copropriété :

  • Copropriété :
    Oui
  • Nombre de lots :
    50
Synthèse
Appartement à Pornichet
639 900 €
Surface : 89 m²
Prix au m² : 7 190 €
Transaction :
Achat
Référence :
XB9P-MTI-TVH
Date de publication :
Il y a plus de 7 jours
Appartement - 89 m² - 5 pièces
Performance énergétique
A
B
C
D
E
F
G
Agent
Azur 44 Immobilier
Azur 44 Immobilier
Appeler
Écrire
Mettre en avant cette annonce
Signaler une erreur

Localisation :

Performance énergétique :

Logement économe
A
B
71 à 110
kWh/m²/an
C
D
E
F
G
Logement énergivore
Annonces similaires
Annonces immobilières récentes