• Appartement - 39 m² - 2 pièces
  • Appartement - 39 m² - 2 pièces
82 000 €
39 m²
2 pièces
1 chambre

Description :

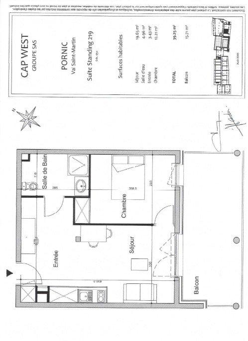
Réalisez un investissement locatif sécurisé en résidence de tourisme sans souci de gestion : le produit idéal pour vous constituer un patrimoine immobilier tout en bénéficiant d'une rentabilité sécurisée par des loyers stables, dès l'acquisition. - Loyer annuel HT : 6 276 € - Rentabilité : 7,65 % - Gestionnaire : Cap West Vous bénéficiez du statut fiscal LMNP amortissable, permettant une exonération d'impôt sur vos revenus locatifs. Le bien est exploité par un gestionnaire professionnel (Cap West), engagé par un bail commercial, vous assurant le versement des loyers dès l'acquisition, que le logement soit loué ou non. Description du bien : Cet appartement T2 situé au 2eme étage offre une disposition fonctionnelle et optimisée : comprenant une entrée avec placards, un séjour avec kitchenette, une chambre avec placard, W.C., salle de bains et un balcon, ainsi qu'un parking intérieur. À propos de la résidence : La résidence Cap West est une résidence de tourisme, idéalement située à Pornic, à proximité des commerces, du port et des plages de la Côte de Jade. Elle bénéficie d'une adresse stratégique : à 3 km de la gare SNCF de Pornic et à environ 46 km de l'aéroport de Nantes Atlantique, ce qui constitue un atout majeur pour l'accessibilité. L'établissement propose des hébergements meublés avec services para-hôteliers. La résidence offre des prestations complètes : parking intérieur, balcon privatif et équipements modernes. Elle dispose d'une copropriété bien structurée. A propos du gestionnaire occupant : Cap West est une société de gestion spécialisée dans l'exploitation de résidences de tourisme, implantée depuis plus de 25 ans, et reconnue pour son savoir-faire et sa solidité dans l'Ouest de la France. Les diagnostics sont en cours de réalisation. Le coin du LMNP - Marine Faure agent basé à NEUILLY SUR SEINE - 01 84 78 46 50 - Plus d'informations sur info@lecoindulmnp.fr réf. 26179 Bien soumis au statut juridique de la Copropriété. Charges annuelles de copropriété (Montant moyen annuel quote-part du budget prévisionnel vendeur) : 1 565 €. Pas de procédure en cours. Prix TTC et Honoraires à charge vendeur TTC

Afficher plus de détails

Informations sur ce bien :

L'intérieur :

  • 2 pièces
  • 39 m²
    Informations complémentaires
    Surface habitable : 39 m²
  • 1 Chambre
  • 1 Salle de bain
  • 1 Toilette

L'extérieur :

  • Parking intérieur
    Informations complémentaires
    Intérieur

Autres :

  • Année de construction :
    1996
  • Mitoyenneté :
    Non
  • Étage :
    2nd étage

Copropriété :

  • Copropriété :
    Oui
  • Charges annuelles :
    1 565 €
  • Taxe foncière :
    337 €
Synthèse
Appartement à Pornic
82 000 €
Surface : 39 m²
Prix au m² : 2 103 €
Transaction :
Achat
Référence :
76DEEAD9CF2846D6
Mandat :
Exclusif
Date de publication :
Il y a plus de 7 jours
Appartement - 39 m² - 2 pièces
Agent
Sextant France
Sextant France
Marine Faure
Appeler
Écrire
Mettre en avant cette annonce
Signaler une erreur

Localisation :

L'adresse exacte n'est pas renseignée. Le bien se situe dans cette zone.
Annonces similaires
Annonces immobilières récentes