• Appartement - 79 m² - 4 pièces
250 000 €
79 m²
4 pièces
3 chambres

Description :

EXCLUSIVITÉ - Appartement T4 à vendre au Carré Liberté, Pont-de-Chéruy

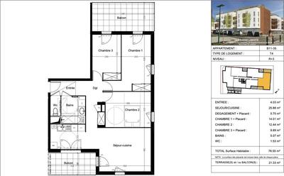
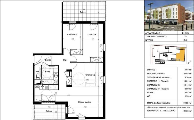
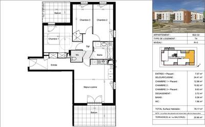
L'agence EVE IMMOBILIER PONT-DE-CHERUY a le plaisir de vous proposer ce magnifique appartement de type T4, situé au deuxième étage de la résidence Carré Liberté, dans un environnement calme et verdoyant.

D'une surface habitable de 78,55 m², ce bien bénéficie d'une disposition optimisée et de prestations de qualité pour un cadre de vie confortable et moderne.

En entrant, vous serez accueilli par un premier dégagement qui dessert un séjour spacieux avec une cuisine ouverte. Cet espace de vie, baigné de lumière naturelle, donne accès à un balcon privatif, parfait pour profiter de moments de détente en extérieur avec une vue agréable sur les espaces verts des parties communes.

Le dégagement principal mène également à une salle de bain moderne et un WC indépendant, offrant un confort supplémentaire.

Un second dégagement dessert la partie nuit, composée de trois chambres confortables, deux de ses chambres donne accès à un second balcon, idéales pour une famille, un bureau ou un espace invité.

L'appartement est équipé de fenêtres en PVC double vitrage, offrant une excellente isolation thermique et phonique. Les volets roulants manuels et le chauffage individuel au gaz par radiateurs garantissent un confort optimal en toutes saisons.

La résidence Carré Liberté respecte les normes RT 2012, vous permettant de bénéficier d'importantes économies d'énergie. De plus, la copropriété est sécurisée avec un accès par visiophone et digicode, et est entièrement fibrée pour une connexion internet rapide et performante. Un ascenseur est également présent pour un accès facile à tous les étages.

De plus, vous avez la possibilité d'acquérir en supplément :
un garage simple, une place de parking, un double garage, ou encore un garage adapté aux normes PMR pour plus de flexibilité.

Une opportunité à ne pas manquer !

Honoraires à la charge du vendeur. Dans une copropriété de 336 lots. Aucune procédure n'est en cours. Classe énergie B, Classe climat B Montant moyen estimé des dépenses annuelles d'énergie pour un usage standard, établi à partir des prix de l'énergie de l'année 2024 : entre 390.00 et 590.00 €. Les informations sur les risques auxquels ce bien est exposé sont disponibles sur le site Géorisques : georisques.gouv.fr.

Votre conseiller EVE IMMOBILIER : Yonnis Torres
Agent commercial (Entreprise individuelle)
RSAC 989 352 166

Afficher plus de détails

Informations sur ce bien :

L'intérieur :

  • 4 pièces
  • 79 m²
  • 3 Chambres
  • Cuisine américaine
    Informations complémentaires
    Américaine
  • 1 Salle de bain
  • 1 Toilette
  • Séjour de 26 m²

L'extérieur :

  • 2 Balcons
  • Parking

Les équipements :

  • Ascenseur

Autres :

  • Chauffage :
    Gaz
  • Année de construction :
    2021
  • Étage :
    2nd étage
    Informations complémentaires
    Nombre d'étages de la construction : 4

Copropriété :

  • Copropriété :
    Oui
  • Nombre de lots :
    336
Synthèse
Appartement à Pont-de-Chéruy
250 000 €
Surface : 79 m²
Prix au m² : 3 165 €
Transaction :
Achat
Référence :
VA1927-SKIMMOBILIER38
Date de publication :
Il y a plus de 7 jours
Appartement - 79 m² - 4 pièces
Performance énergétique
A
B
C
D
E
F
G
Gaz à effet de serre
A
B
C
D
E
F
G
Agent
EVE IMMOBILIER
Appeler
Écrire
Mettre en avant cette annonce
Signaler une erreur

Localisation :

L'adresse exacte n'est pas renseignée. Le bien se situe dans cette zone.

Performance énergétique :

Logement économe
A
B
55
kWh/m²/an
10
kg CO₂/m²/an
C
D
E
F
G
Logement énergivore
Faible émission de CO₂
A
B
10
kg CO₂/m²/an
C
D
E
F
G
Forte émission de CO₂
Date du diagnostic : 12 juin 2024
Estimation des coûts annuels d’énergie du logement : 390 € à 590 €
Annonces similaires
Annonces immobilières récentes