• Loft - 82 m² - 3 pièces
  • Loft - 82 m² - 3 pièces
  • Loft - 82 m² - 3 pièces
215 000 €
82 m²
3 pièces
2 chambres

Description :

Situé à Poleymieux-au-Mont-d'Or, au cœur des Monts d'Or, ce bien bénéficie d'un environnement calme et verdoyant, recherché pour sa qualité de vie et sa proximité avec Lyon. Un jardin partagé se trouve en face du bâtiment, de l'autre côté de la rue, offrant un cadre agréable au quotidien.

Au 33 route de la Roche, la Maison Laroche est un bâtiment de caractère faisant l'objet d'une réhabilitation qualitative. La copropriété est en création et les charges seront faibles, les espaces communs étant volontairement limités.

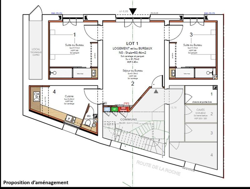
Le lot n°1, situé en rez-de-chaussée, est proposé sous forme de plateau brut à aménager d'une surface utile de 81,73 m², avec une hauteur sous plafond de 3,45 m. Le plateau est libre de toute cloison, dispose des réseaux en attente (eau, évacuations, électricité, fibre) et permet un aménagement entièrement sur mesure.
Les prestations techniques comprennent notamment des plafonds acoustiques isolés, des menuiseries double vitrage (triple vitrage anti-effraction au rez-de-chaussée côté rue), des compteurs individuels et une préparation pour un chauffage individuel par climatisation réversible.

Un projet d'aménagement intérieur peut être proposé en supplément, incluant conception et réalisation, pour un montant de 55 000 € TTC, portant le prix du bien aménagé à 270 000 € FAI.
Le bien se prête également à un usage professionnel discret, tel que bureaux ou cabinet médical / paramédical, sous réserve des autorisations en vigueur.
Stationnement extérieur disponible en option, dans la limite de 8 places sur l'opération, au prix de 5 000 € TTC par place.
Nombre de lots de la copropriété : 4, Montant moyen annuel de la quote-part de charges (budget prévisionnel) : 400€ soit 33€ par mois. Les honoraires sont à la charge du vendeur.
Les informations sur les risques auxquels ce bien est exposé sont disponibles sur le site Géorisques : www. georisques. gouv. fr.

Réseau Immobilier CAPIFRANCE - Votre agent commercial (RSAC N°503 204 471 - Greffe de BOURG EN BRESSE) Georges CANDELIER Entrepreneur Individuel 06 61 45 88 35 - Réf.936556

Afficher plus de détails

Informations sur ce bien :

L'intérieur :

  • 3 pièces
  • 82 m²
    Informations complémentaires
    Surface habitable : 82 m²
  • 2 Chambres
  • 1 Toilette
  • Séjour de 31 m²

Copropriété :

  • Copropriété :
    Oui
  • Nombre de lots :
    4
  • Charges annuelles :
    399,96 €
Synthèse
Loft à Poleymieux-au-Mont-d'Or
215 000 €
Surface : 82 m²
Prix au m² : 2 622 €
Transaction :
Achat
Référence :
340934600484
Date de publication :
Il y a plus de 7 jours
Loft - 82 m² - 3 pièces
Agent
CAPIFRANCE
CAPIFRANCE
Monsieur Georges CANDELIER
Appeler
Écrire
Mettre en avant cette annonce
Signaler une erreur

Localisation :

L'adresse exacte n'est pas renseignée. Le bien se situe dans cette zone.

Performance énergétique :

Bien non soumis au Diagnostic de Performance Énergétique (DPE)

Annonces similaires
Annonces immobilières récentes