• Local d'activité / Entrepôt - 5 700 m²
  • Local d'activité / Entrepôt - 5 700 m²
  • Local d'activité / Entrepôt - 5 700 m²
  • Local d'activité / Entrepôt - 5 700 m²
  • Local d'activité / Entrepôt - 5 700 m²
  • Local d'activité / Entrepôt - 5 700 m²
5 700 m²

Description :

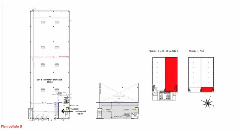
Le cabinet LOCOPRO, vous propose un bâtiment indépendant en VEFA ou BEFA situé à Plan d'Orgon dans la ZAC des ***. En effet, la localisation du programme vous permet d'accéder à l'autoroute A7 à moins de 3min et vous donne accès à des offres de services ou de restauration.Le site a pour projet de disposer d'une surface de 5700 m² divisible à partir de 2850 m². De ce fait la surface comprend 4790 m² de stockage grande hauteur et de 856 m² de bureaux en rdc/1er étage.De plus, il dispose également de plusieurs avantages :
- Hauteur libre :9,8m sous poutre
- Charge sur dallage en RDC : 4 tonnes/m² uniformément répartis
- Protection incendie (RIA)
- Portes sectionnelles 3x3m sur quais
- Portes sectionnelles 4*4,5m plain-pied (double paroi isolée)
- Chauffage Aérotherme électrique
- Centrale photovoltaïque en réinjection gérée par la filiale IDEC ENERGY
- Espace sous mezzanine : Hauteur libre 5,1 m sous poutre
- Certification BREEAM VERY GOOD
- Possibilité de transformer le bâtiment en froid positif/négatifPour plus d'informations, n'hésitez pas à nous contacter. Nous serons ravis de répondre à vos questions.

Afficher plus de détails

Informations sur ce bien :

L'intérieur :

  • 5 700 m²
    Informations complémentaires
    Surface d'activité : 5 700 m²
    Min. : 2 850 m²
Synthèse
Local d'activité / Entrepôt à Plan-d'Orgon
Surface : 5 700 m²
Transaction :
Achat (professionnels)
Référence :
13_11667
Date de publication :
Il y a plus de 7 jours
Local d'activité / Entrepôt - 5 700 m²
Agent
LOCOPRO
LOCOPRO
Victor ALFARO
Appeler
Écrire
Mettre en avant cette annonce
Signaler une erreur

Localisation :

L'adresse exacte n'est pas renseignée. Le bien se situe dans cette zone.
Annonces immobilières récentes