• Appartement - 44 m² - 2 pièces
  • Appartement - 44 m² - 2 pièces
  • Appartement - 44 m² - 2 pièces
235 000 €
44 m²
2 pièces
1 chambre

Description :

Côtes d'Armor, Perros-Guirec ( 22700), Offre spéciale pour les 2 prochaines réservations : 500 euros TTC remboursés chaque mois jusqu'en 2030, à compter de la remise des clés.

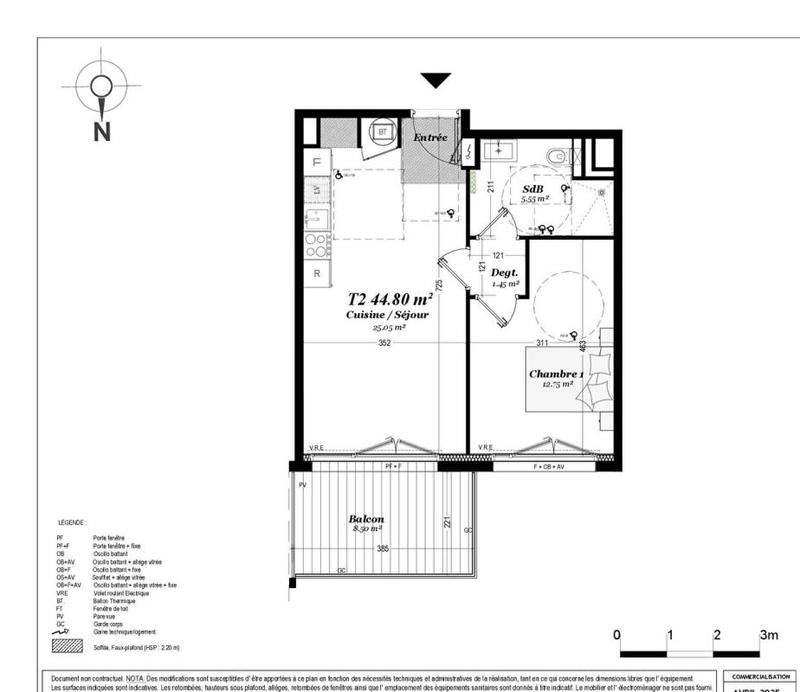
Idéalement situé à deux pas du port de plaisance, cet appartement 2 pièces de 44 m² dispose d'un balcon agréable pour profiter des beaux jours et de la vue mer.

Les points essentiels :
Belle pièce de vie avec cuisine ouverte
1 chambre
Salle d'eau confortable et WC
Balcon
Prestations RT 2020, confort moderne et charges maîtrisées

A proximité immédiate des restaurants, du marché du mercredi, des boulangeries, de la mer et de la vie locale de Perros-Guirec.

Budget : 235 000 euros TTC
Honoraires à la charge du vendeur.

Prestations soignées, excellent niveau d'isolation et de confort, faibles charges de copropriété.

Plans et notice descriptive complète sur demande. Photos non contractuelles.
Remise des clés : 1er semestre 2027.

Pour visiter et vous accompagner dans votre projet, contactez :
Laurence KERMOAL 06 22 40 03 11 l.kermoal@proprietes-privees.com

Selon l'article L.561.5 du Code Monétaire et Financier, pour l'organisation de la visite, la présentation d'une pièce d'identité vous sera demandée. Cette annonce a été rédigée sous la responsabilité éditoriale de Laurence KERMOAL agissant sous le statut d'agent commercial immatriculé au RSAC SAINT BRIEUC 822474235 auprès de SAS PROPRIETES PRIVEES, au capital de 44 920 euros, ZAC LE CHÊNE FERRÉ - 44 ALLÉE DES CINQ CONTINENTS 44120 VERTOU ; SIRET 487 624 777 00040, RCS Nantes. Carte Professionnelle Transactions sur immeubles et fonds de commerce (T) et Gestion immobilière (G) n°CPI 4401 2016 000 010 388 délivrée par la CCI Nantes - Saint Nazaire. Compte séquestre n°30932508467 BPA SAINT-SEBASTIEN-SUR-LOIRE (44230). Garantie GALIAN-SMABTP - 89 rue de la Boétie, 75008 Paris - n°28137 J pour 2 000 000 euros pour T et 120 000 euros pour G. Assurance responsabilité civile professionnelle par GALIAN-SMABTP n° de police 28137.J
Mandat réf : 430 963 - B103 -
Le professionnel garantit et sécurise votre projet immobilier.

Laurence KERMOAL (EI) Agent Commercial - Numéro RSAC : SAINT BRIEUC 822474235 - .

Afficher plus de détails

Informations sur ce bien :

L'intérieur :

  • 2 pièces
  • 44 m²
    Informations complémentaires
    Surface habitable : 45 m²
  • 1 Chambre
  • Cuisine aménagée
    Informations complémentaires
    Aménagée
  • 1 Salle d'eau
  • 1 Toilette

L'extérieur :

  • Balcon

Les équipements :

  • Ascenseur

Autres :

  • Année de construction :
    2026
  • État :
    Excellent, Intérieur : Excellent
  • Vue :
    MER
  • Étage :
    1er étage
    Informations complémentaires
    Nombre d'étages de la construction : 3
Synthèse
Appartement à Perros-Guirec
235 000 €
Surface : 44 m²
Prix au m² : 5 341 €
Transaction :
Achat
Référence :
430963LKE
Date de publication :
Le 29 nov. à 08:20
Appartement - 44 m² - 2 pièces
Agent
Propriétés Privées
Propriétés Privées
Laurence KERMOAL
Appeler
Écrire
Mettre en avant cette annonce
Signaler une erreur

Localisation :

Performance énergétique :

Bien non soumis au Diagnostic de Performance Énergétique (DPE)

Annonces similaires
Annonces immobilières récentes