• Immeuble - 300 m²
  • Immeuble - 300 m²
  • Immeuble - 300 m²
  • Immeuble - 300 m²
  • Immeuble - 300 m²
295 000 €
300 m²

Description :

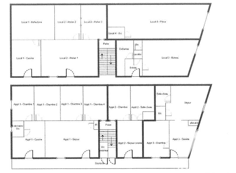
Iad France - Vanessa Irain vous propose : * PERPIGNAN SAINT MARTIN * Immeuble de rapport comprenant : - Rez-de-chaussée : 4 locaux commerciaux de tous libres de toutes occupations * 45 m² avec espace cuisine et wc séparé accessible PMR - pas de travaux - rideau métallique proposé à la location au prix de 500e HT. * 46 m² * 37 m² * 36 m² - dispose d'un wc séparé Ils nécessite des travaux de rafraichissement mais ils peuvent aussi être transformés en appartements. - A l'étage 3 appartements loués * T5 de 82 m² loué 700 + 30e - depuis 2023 * T2 de 40 m² environ loué 400 + 30e - depuis 2023 * T2 de 40 m² environ loué 200e - depuis 04 / 1994 Taxe foncière : 3300€ Si l'ensemble est loué pour un revenu annuel de 32000e, vous pouvez espérer une rentabilité global de 10% brut. Honoraires d'agence à la charge du vendeur. Bien non soumis au DPE. Les informations sur les risques auxquels ce bien est exposé, y compris l'obligation légale de débroussaillement, sont disponibles sur le site Géorisques : http://www.georisques.gouv.fr. La présente annonce immobilière a été rédigée sous la responsabilité éditoriale de Mme Vanessa Irain mandataire indépendant en immobilier (sans détention de fonds), agent commercial de la SAS I@D France immatriculé au RSAC de PERPIGNAN sous le numéro 843401738, titulaire de la carte de démarchage immobilier pour le compte de la société I@D France SAS.

Afficher plus de détails

Informations sur ce bien :

L'intérieur :

  • 300 m²
    Informations complémentaires
    Surface habitable : 300 m²

Autres :

  • Année de construction :
    1900
  • Mitoyenneté :
    Non
Synthèse
Immeuble à Perpignan
295 000 €
Surface : 300 m²
Prix au m² : 983 €
Transaction :
Achat
Référence :
1996637
Date de publication :
Hier à 07:38
Immeuble - 300 m²
Agent
iad france
iad france
Vanessa Irain
Appeler
Écrire
Mettre en avant cette annonce
Signaler une erreur

Localisation :

L'adresse exacte n'est pas renseignée. Le bien se situe dans cette zone.
Annonces similaires
Annonces immobilières récentes