Terrain - 655 m² à Péron
favoris
210 000 €
Description :
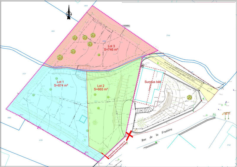
A peron, secteur logras, dans un environnement pavillonnaire, parcelle de 655 m2 arborée en Zone UGP1 avec une emprise au sol de 18% et une hauteur totale maximale autorisée de 9m. D'autres lots sont disponibles. A 15mn de la douane de Meyrin à proximité des écoles primaires collège, et des commerces. Lot 2 sur le plan
Afficher plus de détails
Informations sur ce bien :
L'intérieur :
-
655 m²
-
Sans cuisineInformations complémentairesSans cuisine
L'extérieur :
-
Parking
Autres :
-
Exposition :Sud, Ouest
-
Étage :RDC
Terrain :
-
Viabilisé :Non
Synthèse
Terrain à Péron
210 000 €
Surface :
655 m²
Prix au m² :
321 €
Transaction :
Achat
Référence :
3585
Date de publication :
Il y a plus de 7 jours
Contacter l'annonceur
Agent
COSI IMMOBILIER
MERESSE Pascal
Mettre en avant cette annonce
Signaler une erreur
Localisation :
L'adresse exacte n'est pas renseignée. Le bien se situe dans cette zone.
Ventes de terrains à proximité
- 2 ventes de terrains à Saint-Jean-de-Gonville (3.3 km)
- 1 vente de terrain à Collonges (5.9 km)
- 2 ventes de terrains à Thoiry (6.7 km)
- 2 ventes de terrains à Sergy (8.9 km)
- 3 ventes de terrains à Saint-Genis-Pouilly (9.7 km)
- 10 ventes de terrains à Vulbens (9.7 km)
- 1 vente de terrain à Lancrans (10.2 km)
- 2 ventes de terrains à Châtillon-en-Michaille (11.1 km)
- 2 ventes de terrains à Dingy-en-Vuache (11.1 km)