• Maison - 50 m² - 3 pièces
  • Maison - 50 m² - 3 pièces
  • Maison - 50 m² - 3 pièces
187 000 €
50 m²
3 pièces
1 chambre

Description :

PEILLON – À 30 minutes de Nice

Au cœur du village médiéval de Peillon, maison de village individuelle de 2/3 pièces d’environ 50M², pleine de charme et de caractère.

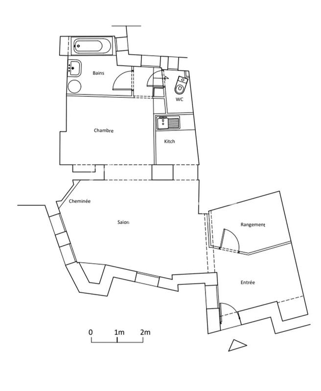
Accessible par un escalier, cette maison se compose d’une entrée, d’un double séjour lumineux d’environ 19 m², d’une cuisine indépendante, d’une chambre, d’un bureau pouvant faire office de petite chambre ou espace nuit, ainsi que d’une salle de bains et de WC indépendants.

Le bien a conservé toute l’authenticité des maisons de l’arrière-pays niçois : murs en pierre, poutres apparentes, portes en bois et volumes typiques. L’ensemble nécessite des travaux de rénovation, offrant un beau potentiel pour réaliser un projet sur-mesure, que ce soit pour une résidence principale, secondaire ou un investissement locatif.

Nichée dans un environnement calme et préservé, cette maison allie le charme de l’ancien à un cadre de vie paisible.

Perché sur un éperon rocheux dominant la vallée du Paillon, le village de Peillon séduit par son authenticité : ruelles pavées, maisons en pierre et passages voûtés composent une atmosphère hors du temps, au cœur d’un écrin de verdure.

À seulement quelques minutes de Nice et du littoral, Peillon bénéficie d’un cadre naturel privilégié tout en restant proche des commodités et des axes principaux.

Classe énergie : F.

Afficher plus de détails

Informations sur ce bien :

L'intérieur :

  • 3 pièces
  • 50 m²
    Informations complémentaires
    Surface Carrez : 51 m²
  • 1 Chambre de 10 m²
  • Cuisine de 3 m²
  • 1 Salle de bain de 5 m²
  • 1 Toilette de 2 m²
  • Séjour de 19 m²
  • 1 Bureau de 5 m²

Les équipements :

  • Tout à l'égout
  • Cheminée
  • Climatisation
  • ADSL
  • Double vitrage

Autres :

  • Chauffage :
    Individuel, Convecteur, Électrique
  • Eau chaude :
    Individuel, Chauffe-eau
  • État :
    À rafraîchir
  • Exposition :
    Sud
  • Vue :
    Aperçu, Collines, campagne

Copropriété :

  • Taxe foncière :
    930 €
Synthèse
Maison à Peillon
187 000 €
Surface : 50 m²
Prix au m² : 3 740 €
Transaction :
Achat
Date de publication :
Aujourd'hui à 14:01
Maison - 50 m² - 3 pièces
Performance énergétique
A
B
C
D
E
F
G
Gaz à effet de serre
A
B
C
D
E
F
G
Agent
HBM immobilier
HBM immobilier
Benjamin HENOU
Appeler
Écrire
Mettre en avant cette annonce
Signaler une erreur

Localisation :

L'adresse exacte n'est pas renseignée. Le bien se situe dans cette zone.

Performance énergétique :

Logement économe
A
B
C
D
E
F
352
kWh/m²/an
11
kg CO₂/m²/an
G
Logement énergivore
Faible émission de CO₂
A
B
11
kg CO₂/m²/an
C
D
E
F
G
Forte émission de CO₂
Date du diagnostic : 04 février 2026
Annonces similaires
Annonces immobilières récentes