Appartement - 99 m² - 4 pièces à Pau
favoris
355 000 €
Description :
Chez Novarea, on aime investir sur l'avenir !
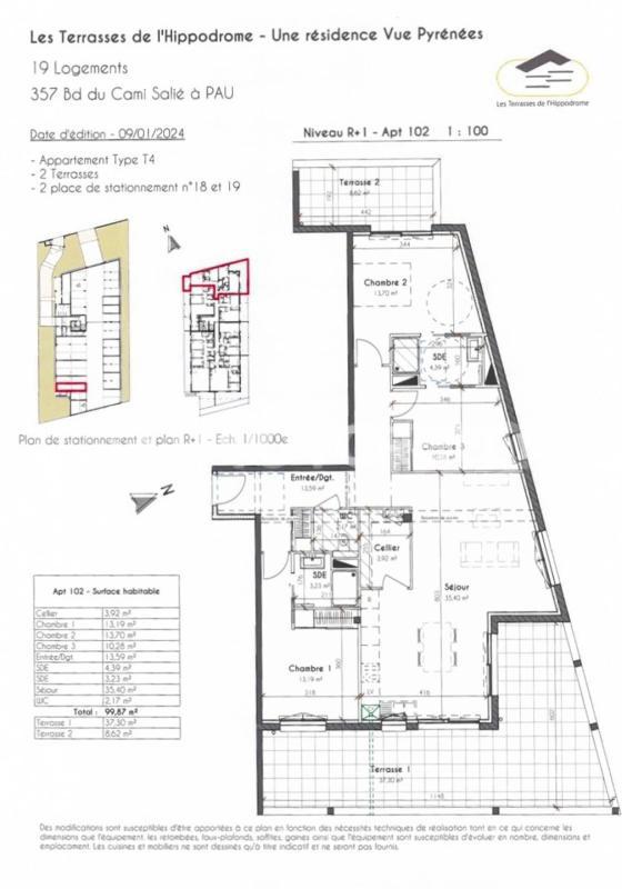
Ce confortable T4 se situe au 1er étage d'un immeuble neuf sur un secteur résidentiel prisé de Pau. Il se compose d'un séjour avec cuisine ouverte à aménager donnant sur une terrasse, de trois chambres dont une suite parentale et d'une salle d'eau. Pour le stationnement cet appartement est vendu avec deux places privatives sécurisées en sous-sol.
Ce que l'on aime chez Novarea : Chauffage au sol, batiment BBC, RT 2012, DPE en classe énergetique B
Cerise sur le gâteau : Choix des finitions et frais de notaire réduits. Prix promoteur.
Livraison Immédiate ; Envie d'en savoir plus ? Contactez vite Novarea !
Afficher plus de détails
Informations sur ce bien :
L'intérieur :
-
4 pièces
-
99 m²Informations complémentairesSurface habitable : 100 m²
-
3 Chambres
-
Cuisine équipéeInformations complémentairesÉquipée
-
1 Salle d'eau
-
1 Toilette
-
Séjour de 35 m²
L'extérieur :
-
Terrasse
-
2 Parkings
Les équipements :
-
Ascenseur
-
Accès handicapé
-
Interphone
-
Digicode
Autres :
-
Chauffage :Individuel, Gaz
-
Année de construction :2024
-
Étage :1er étageInformations complémentairesNombre d'étages de la construction : 4
Copropriété :
-
Copropriété :Oui
-
Nombre de lots :102
Synthèse
Appartement à Pau
355 000 €
Surface :
99 m²
Prix au m² :
3 586 €
Transaction :
Achat
Référence :
771-102
Date de publication :
Il y a plus de 7 jours
Contacter l'annonceur
Performance énergétique
A
B
C
D
E
F
G
Gaz à effet de serre
A
B
C
D
E
F
G
Agent
NOVERA
Brigitte LAFITTE
Mettre en avant cette annonce
Signaler une erreur
Localisation :
L'adresse exacte n'est pas renseignée. Le bien se situe dans cette zone.
Performance énergétique :
Logement économe
A
B
59
kWh/m²/an
10
kg CO₂/m²/an
C
D
E
F
G
Logement énergivore
Faible émission de CO₂
A
B
10
kg CO₂/m²/an
C
D
E
F
G
Forte émission de CO₂
Date du diagnostic :
30 juin 2025
Ventes d'appartements à proximité
- 6 ventes d'appartements à Gelos (1 km)
- 12 ventes d'appartements à Bizanos (1.4 km)
- 17 ventes d'appartements à Jurançon (1.8 km)
- 45 ventes d'appartements à Billère (2.3 km)
- 2 ventes d'appartements à Mazères-Lezons (2.5 km)
- 7 ventes d'appartements à Aressy (3.9 km)
- 34 ventes d'appartements à Lons (4 km)
- 19 ventes d'appartements à Idron (4.8 km)
- 47 ventes d'appartements à Lescar (6.7 km)