Local commercial - 66 m² - 3 pièces à Pau
favoris
109 000 €
Description :
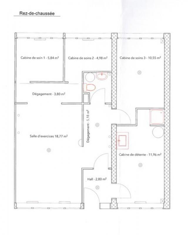
Novarea vous présente un local libérale de 66 m2 dans le quartier FOIRE EXPO, idéal pour profession libérale. Proche de toutes commodités. (Parking, Bus, pharmacie, boulangerie, supermarché...) Si vous souhaitez plus d'informations à son sujet ou le visiter, contactez vite Novarea, notre équipe se fera un plaisir de vous renseigner et de vous conseiller au mieux pour votre projet.
Afficher plus de détails
Informations sur ce bien :
L'intérieur :
-
3 pièces
-
66 m²Informations complémentairesSurface commerciale : 66 m²
L'extérieur :
-
Parking
Autres :
-
Chauffage :Individuel, Électrique
-
Année de construction :1960
-
État :excellent état
Copropriété :
-
Copropriété :Oui
-
Nombre de lots :414
-
Charges annuelles :1 169 €
-
Taxe foncière :900 €
Synthèse
Local commercial à Pau
109 000 €
Surface :
66 m²
Prix au m² :
1 652 €
Transaction :
Achat (professionnels)
Référence :
881
Mandat :
Exclusif
Date de publication :
Il y a plus de 7 jours
Contacter l'annonceur
Agent
NOVERA
Michael LAFITTE
Mettre en avant cette annonce
Signaler une erreur
Localisation :
L'adresse exacte n'est pas renseignée. Le bien se situe dans cette zone.
Performance énergétique :
Bien non soumis au Diagnostic de Performance Énergétique (DPE)
Date du diagnostic :
13 mai 2024
Ventes de locaux commerciaux à proximité
- 1 vente de local commercial à Gelos (1 km)
- 2 ventes de locaux commerciaux à Billère (2.3 km)
- 6 ventes de locaux commerciaux à Lons (4 km)
- 5 ventes de locaux commerciaux à Idron (4.8 km)
- 6 ventes de locaux commerciaux à Lescar (6.7 km)
- 2 ventes de locaux commerciaux à Ousse (8.4 km)
- 2 ventes de locaux commerciaux à Montardon (8.4 km)
- 3 ventes de locaux commerciaux à Serres-Castet (10.3 km)
- 2 ventes de locaux commerciaux à Sauvagnon (12.1 km)