• Bureau - 94 m²
  • Bureau - 94 m²
  • Bureau - 94 m²
  • Bureau - 94 m²
  • Bureau - 94 m²
  • Bureau - 94 m²
  • Bureau - 94 m²
  • Bureau - 94 m²
9 000 € / mois
94 m²

Description :

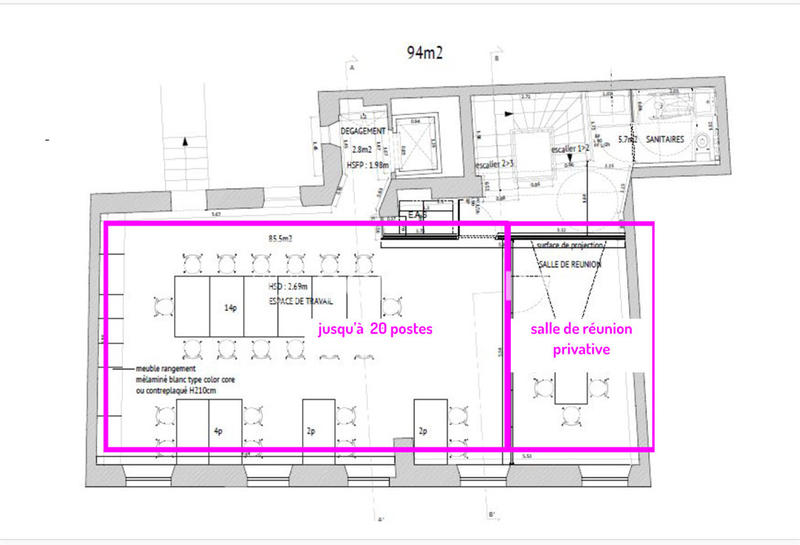
Au coeur du quartier Sentier, dans un immeuble indépendant, à louer au 2ème étage en prestation de services une surface de bureaux d'environ 94m² CARACTERISTIQUES DE L'OFFRE :

20 postes (495€/poste CC)

open-space privatif

espace réunion vitrée privatif

kitchenette privative

toilette à partager

ACCÈS AUX ESPACES COLLECTIFS DU LLL

Accès total au 1er étage rue d'Alexandrie (sauf si

location événementielle)

Accès aux 3 espaces de réunions ainsi que le cinéma

Accès au restaurant Waalo au RDC rue d'Alexandrie

Wifi sécurisé et ultra-haut débit - FTTO Fibre dédiée

Prise en charge du courrier et des colis CONDITIONS FINANCIERES: Bail : Prestation des services (1an renouvelable) 

Loyer : 9 000 €/mois CC HT l Compris dans les charges : équipe maintenance, électricité, eau, internet, mobilier, charges, taxes foncières

Disponibilité : immédiate 

Afficher plus de détails

Informations sur ce bien :

L'intérieur :

  • 94 m²
Synthèse
Bureau à Paris 2
9 000 € / mois
Surface : 94 m²
Transaction :
Location (locaux professionnels)
Référence :
10316282
Date de publication :
Il y a plus de 7 jours
Bureau - 94 m²
Agent
CONSULT IM
CONSULT IM
Appeler
Écrire
Mettre en avant cette annonce
Signaler une erreur

Localisation :

L'adresse exacte n'est pas renseignée. Le bien se situe dans cette zone.
Annonces similaires
Annonces immobilières récentes