Fonds de commerce - Magasins - 32 m² à Paris 18

favoris
  • Fonds de commerce - Magasins - 32 m²
48 000 €
32 m²

Description :

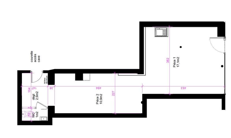
Exclusivité - GIFOM - Cession droit au bail boutique - TOP EMPLACEMENT- secteur : Village Ramey 75018 Paris. Métro Château Rouge.

Bel emplacement, boutique de plain pied d'une surface de 31.9 m² avec linéaire de vitrine de 4 ML, composée d'une surface de vente de 31.9 m² en L, sanitaires et point d'eau + une cave de 5 m² accès par les parties communes. . Bail neuf. idéal coffee shop, salon de thé, PAP etc ..... (droit de terrasse possible de 12 places). Contacter nous pour plus d'informations ou visites !

Loyer mensuel : 1 600 € + 150 € de charges.
Prix de vente : 48 000 € FAI.
Réf. Agence : CEBA 3889.
GIFOM - Spécialiste en immobilier Commercial
Site internet : https://gifom.octissimo.com/

Afficher plus de détails

Informations sur ce bien :

L'intérieur :

  • 32 m²

L'extérieur :

  • Parking

Autres :

  • Étage :
    RDC
Synthèse
Magasins à Paris 18
48 000 €
Surface : 32 m²
Prix au m² : 1 500 €
Transaction :
Fonds de commerce
Référence :
CEBA 3889-GIFOM75
Date de publication :
Il y a plus de 7 jours
Fonds de commerce - Magasins - 32 m²
Agent
GIFOM
Nicolas PORTALIER
Appeler
Écrire
Mettre en avant cette annonce
Signaler une erreur

Localisation :

Annonces similaires
Annonces immobilières récentes