Appartement - 51 m² - 3 pièces à Paris 17

favoris
  • Appartement - 51 m² - 3 pièces
  • Appartement - 51 m² - 3 pièces
  • Appartement - 51 m² - 3 pièces
  • Appartement - 51 m² - 3 pièces
570 000 €
51 m²
3 pièces
2 chambres

Description :

PARIS XVII – RUE LEGENDRE – 3 PIÈCES

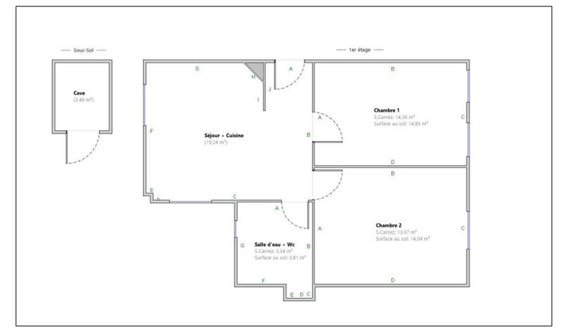
Situé dans un bel immeuble haussmannien en pierre de taille datant de 1880, cet appartement de 51 m² (loi Carrez) est situé au 1 er étage.

Le bien se compose comme suit :

• Une entrée menant à la salle à manger donnant sur une cuisine ouverte.
• Un salon avec fenêtres en double vitrage donnant sur la rue.
• Une chambre.
• Une salle de bains avec ses toilettes.
Une cave complète ce bien.

Excellent accès aux transports en commun :

• Métro :
Guy Moquet (ligne 13) est à environ 1 minute à pied.
Brochant (ligne 13) est à environ 6 minutes à pied.
La Fourche (ligne 13) est à environ 6 minutes à pied.
Place de Clichy (ligne 2 & 13) est à environ 9 minutes à pied.
Pont Cardinet (ligne L) à environ 8 minutes à pied.

• Bus :
30, 54, 68, 163, 21, 31 etc..

DPE : F
Estimations des coûts annuels d'énergie du logement : entre 1 660 et 2 280 euros.
Taxe foncière annuelle : 1226 euros.
Charges mensuelles : 200 euros.
Appartement traversant nord-ouest/sud-est. Les chambres sont exposées sud-est, profitant d'un ensoleillement matinal, tandis que le séjour-cuisine est orienté nord-ouest, offrant une lumière douce en fin de journée.
Les informations sur les risques auxquels ce bien est exposé sont disponibles sur le site Georisque : georisques. gouv. fr
France De La Jonquière - EI - est Agent Commercial mandataire en immobilier, immatriculé au Registre Spécial des Agents Commerciaux du Tribunal de Commerce de Paris 4e Arrondissement sous le n°880305362.
Siège social du mandant : effiCity, 48 avenue de Villiers - 75017 PARIS - Société par Actions Simplifiée, société au capital de 132 373,05 euros, immatriculée au RCS Paris 497 617 746 et titulaire de la Carte professionnelle CPI 7501 2015 000 002 025 - CCI Paris IDF - Caisse de Garantie : GALIAN Assurances 89 rue de la Boétie 75008 Paris

Afficher plus de détails

Informations sur ce bien :

L'intérieur :

  • 3 pièces
  • 51 m²
    Informations complémentaires
    Surface habitable : 52 m²
  • 2 Chambres
  • 1 Salle de bain
  • 1 Toilette
  • Cave

Les équipements :

  • Accès handicapé

Autres :

  • Étage :
    1er étage

Copropriété :

  • Copropriété :
    Oui
  • Nombre de lots :
    31
  • Charges annuelles :
    2 240 €
Synthèse
Appartement à Paris 17
570 000 €
Surface : 51 m²
Prix au m² : 11 176 €
Transaction :
Achat
Référence :
202537
Mandat :
Exclusif
Date de publication :
Aujourd'hui à 08:15
Appartement - 51 m² - 3 pièces
Performance énergétique
A
B
C
D
E
F
G
Gaz à effet de serre
A
B
C
D
E
F
G
Agent
RESEAU EFFICITY
RESEAU EFFICITY
Mme France De La Jonquière
Appeler
Écrire
Mettre en avant cette annonce
Signaler une erreur

Localisation :

Performance énergétique :

Logement économe
A
B
C
D
E
F
410
kWh/m²/an
13
kg CO₂/m²/an
G
Logement énergivore
Faible émission de CO₂
A
B
C
13
kg CO₂/m²/an
D
E
F
G
Forte émission de CO₂
Date du diagnostic : 19 février 2025
Annonces similaires
Annonces immobilières récentes